第10章 DTD、ZTD、CTD系列重载弹簧箱支吊架
1 适用范围
DTD、ZTD、CTD系列重载弹簧箱支吊架适用于既有垂直位移又有水平位移的工况条件,起到载荷平衡和减震作用。适用位移范围为0~30mm、0~60mm、0~90mm、0~120mm、0~180mm、0~240mm六档。适用载荷范围为7572~2394990N。适用温度范围为-20~220℃。
2 分类和型号表示方法
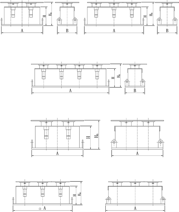
2.1 分类和型式(表4-10-1)
表4-10-1 DTD、ZTD、CTD系列重载弹簧箱支吊架分类、型式及图例
|
系列 |
类别 |
型式代号 |
型式 |
载荷范围 N |
图例 |
|
DTD |
单排 |
DTDA |
单排双组组合弹簧箱 |
7572~532218 |
图4-10-1 |
|
DTDB |
单排叁组组合弹簧箱 |
11358~798327 |
图4-10-2 |
||
|
DTDC |
单排肆组组合弹簧箱 |
15144~1064436 |
图4-10-3 |
||
|
ZTD |
正方形 |
ZTDA |
正方形组合弹簧箱 |
15144~1064436 |
图4-10-4 |
|
ZTDB |
正方形重载组合弹簧箱 |
34074~2394990 |
图4-10-5 |
||
|
CTD |
双排 |
CTD |
双排组合弹簧箱 |
22716~1596654 |
图4-10-6 |
2.2 型号表示方法
工作载荷,N 计算热位移,mm,及位移方向(↑或↓) 支吊架编号 重载弹簧箱型式代号
最大位移量,mm
2.3 型号标注示例
单排双组型组合弹簧箱,最大位移量为60mm,支吊架编号为11号,计算热位移为18mm,方向向下,工作载荷为215457N的型号为:
DTD60-11-18↓/215457
3 载荷、位移、刚度系列表
3.1 DTDA型单排双组组合弹簧箱支吊架的载荷、位移、刚度系列表见表4-10-3。
3.2 DTDB型单排叁组组合弹簧箱支吊架的载荷、位移、刚度系列表见表4-10-4。
3.3 DTDC型单排肆组组合弹簧箱支吊架的载荷、位移、刚度系列表见表4-10-5。
3.4 ZTDA型正方形组合弹簧箱支吊架的载荷、位移、刚度系列表见表4-10-5。
3.5 ZTDB型正方形组合重载弹簧箱支吊架的载荷、位移、刚度系列表见表4-10-6。
3.6 CTD型双排组合弹簧箱支吊架的载荷、位移、刚度系列表见表4-10-7。
4 型号选用及实例
DTD、ZTD、CTD系列重载弹簧箱支吊架型号选用及实例见表4-10-2。
表4-10-2 DTD、ZTD、CTD系列重载弹簧箱支吊架型号选用及实例
|
程序 |
选用及计算程序型号 |
实 例 |
|
0 |
计算工作载荷 |
计算工作载荷=563100N |
|
工作位移量 |
工作位移量=40mm |
|
|
位移方向,↓或↑ |
位移方向:↓ |
|
|
外形尺寸限定 |
外形尺寸限定:≤1500mm×460mm |
|
|
1 |
根据上述设计要求,初步选定弹簧箱支吊架型式,并根据表4-10-3~7查出支吊架的编号 |
根据外形尺寸1500mm×460mm,确定适合的弹簧箱 支吊架的型式是DTDC型单排肆组组合弹簧箱支吊架。 根据工作位移量=40mm,初步确定工作位移范围为0~ 60mm。根据位移方向向下,在表4-10-5中寻找载荷中 线以下的工作载荷,初步确定支吊架编号为12 |
|
2 |
根据表4-10-3~7,查出弹簧刚度 |
在表4-10-5中,查出支吊架编号为12,工作位移 范围为0~60mm的弹簧刚度=3910.6N/mm |
|
3 |
安装载荷=工作载荷±位移量×弹簧刚度 (式中:↑取+,↓取-) |
安装载荷=563100-40×3910.6=406676N |
|
4 |
验算载荷变化率=
|
载荷变化率=
|
|
5 |
重新调整位移范围 |
位移范围调整为90mm |
|
6 |
重复程序2,查出弹簧刚度,N/mm |
查表4-10-5,弹簧刚度=2607.07N/mm |
|
7 |
重复程序3,计算安装载荷 |
安装载荷=563100-40×2607.07=458792mm |
|
8 |
重复程序4,验算载荷变化率 |
载荷变化率=
|
|
9 |
选定弹簧箱型号 |
选定弹簧箱型号:DTDC90-12-40↓563100 |
表4-10-3 DTDA型单排双组组合弹簧箱载荷、位移、刚度选用表 N
|
变形量(mm) |
支 架 编 号 |
|||||||||||
|
240 |
180 |
120 |
90 |
60 |
30 |
01 |
02 |
03 |
04 |
05 |
06 |
07 |
|
320 |
240 |
160 |
120 |
80 |
40 |
6731 |
8976 |
11970 |
15963 |
21285 |
28386 |
37853 |
|
328 |
246 |
614 |
123 |
82 |
41 |
6899 |
9200 |
12269 |
16362 |
21817 |
39096 |
38799 |
|
336 |
252 |
168 |
126 |
84 |
42 |
7067 |
9425 |
12568 |
16761 |
22350 |
39805 |
39745 |
|
344 |
258 |
172 |
129 |
86 |
43 |
7235 |
9649 |
12868 |
17160 |
22882 |
30515 |
40691 |
|
352 |
264 |
176 |
132 |
88 |
44 |
7404 |
9874 |
13167 |
17559 |
23414 |
31224 |
41638 |
|
360 |
270 |
180 |
135 |
90 |
45 |
7572 |
10098 |
13466 |
17958 |
23946 |
31934 |
42584 |
|
368 |
276 |
184 |
138 |
92 |
46 |
7740 |
10322 |
13765 |
18357 |
24478 |
32644 |
43530 |
|
376 |
282 |
188 |
141 |
94 |
47 |
7909 |
10547 |
14064 |
18756 |
25010 |
33353 |
44477 |
|
384 |
288 |
192 |
144 |
96 |
48 |
8077 |
10771 |
14364 |
19155 |
25542 |
34063 |
45423 |
|
392 |
294 |
196 |
147 |
98 |
49 |
8245 |
10996 |
14663 |
19554 |
26075 |
34772 |
46369 |
|
400 |
300 |
200 |
150 |
100 |
50 |
8413 |
11220 |
14962 |
19953 |
26607 |
35482 |
47315 |
|
408 |
306 |
204 |
153 |
102 |
51 |
8582 |
11444 |
15261 |
20352 |
27139 |
36192 |
48262 |
|
416 |
312 |
208 |
156 |
104 |
52 |
8750 |
11669 |
15561 |
20751 |
27671 |
36901 |
49208 |
|
424 |
318 |
212 |
159 |
106 |
53 |
8918 |
11893 |
15860 |
21150 |
28203 |
37611 |
50154 |
|
432 |
324 |
216 |
162 |
108 |
54 |
9087 |
12118 |
16159 |
21550 |
28735 |
38321 |
51101 |
|
440 |
330 |
220 |
165 |
110 |
55 |
9255 |
12342 |
16458 |
21949 |
29267 |
39030 |
52047 |
|
448 |
336 |
224 |
168 |
112 |
56 |
9423 |
12566 |
16758 |
22348 |
29800 |
39740 |
52993 |
|
456 |
342 |
228 |
171 |
114 |
57 |
9591 |
12791 |
17057 |
22747 |
30332 |
40449 |
53940 |
|
464 |
348 |
232 |
174 |
116 |
58 |
9760 |
13015 |
17356 |
23146 |
30864 |
41159 |
54886 |
|
472 |
354 |
236 |
177 |
118 |
59 |
9928 |
13240 |
17655 |
23545 |
31396 |
41869 |
55832 |
|
480 |
360 |
240 |
180 |
120 |
60 |
10096 |
13464 |
17955 |
23944 |
31928 |
42578 |
56778 |
|
488 |
366 |
244 |
183 |
122 |
61 |
10264 |
13688 |
18254 |
24343 |
32460 |
43288 |
57725 |
|
496 |
372 |
248 |
186 |
124 |
62 |
10433 |
13913 |
18553 |
24742 |
32992 |
43998 |
58671 |
|
504 |
378 |
252 |
189 |
126 |
63 |
10601 |
14137 |
18852 |
25141 |
33525 |
44707 |
59617 |
|
512 |
384 |
256 |
192 |
128 |
64 |
10769 |
14362 |
19152 |
25540 |
34057 |
45417 |
60564 |
|
520 |
390 |
260 |
195 |
130 |
65 |
10938 |
14586 |
19451 |
25939 |
34589 |
46126 |
61510 |
|
528 |
396 |
264 |
198 |
132 |
66 |
11106 |
14810 |
19750 |
26338 |
35121 |
46836 |
62456 |
|
536 |
402 |
268 |
201 |
134 |
67 |
11274 |
15035 |
20049 |
26737 |
35653 |
47246 |
63403 |
|
544 |
408 |
272 |
204 |
136 |
68 |
11442 |
15259 |
20349 |
27136 |
36185 |
48255 |
64349 |
|
552 |
414 |
276 |
207 |
138 |
69 |
11611 |
15484 |
20648 |
27535 |
36717 |
48965 |
65295 |
|
560 |
420 |
280 |
210 |
140 |
70 |
11779 |
15708 |
20947 |
27934 |
37250 |
49674 |
66241 |
|
568 |
426 |
284 |
213 |
142 |
71 |
11947 |
15932 |
21246 |
28334 |
37782 |
50384 |
67188 |
|
576 |
432 |
288 |
216 |
144 |
72 |
12116 |
16157 |
21545 |
28733 |
38314 |
51094 |
68134 |
|
584 |
438 |
292 |
219 |
146 |
73 |
12284 |
16381 |
21845 |
29132 |
38846 |
51803 |
69080 |
|
592 |
444 |
296 |
222 |
148 |
74 |
12452 |
16606 |
22144 |
29531 |
39378 |
52513 |
70027 |
|
600 |
450 |
300 |
225 |
150 |
75 |
12620 |
16830 |
22443 |
29930 |
39910 |
53223 |
70973 |
|
608 |
456 |
304 |
228 |
152 |
76 |
12789 |
17054 |
22742 |
30329 |
40442 |
53932 |
71919 |
|
616 |
462 |
308 |
231 |
154 |
77 |
12957 |
17279 |
23042 |
30728 |
40974 |
54642 |
72866 |
|
624 |
468 |
312 |
234 |
156 |
78 |
13125 |
17503 |
23341 |
31127 |
41507 |
55351 |
73812 |
|
632 |
474 |
316 |
237 |
158 |
79 |
13294 |
17728 |
23640 |
31526 |
42039 |
56061 |
74758 |
|
640 |
480 |
320 |
240 |
160 |
80 |
13462 |
17952 |
23939 |
31925 |
42571 |
56771 |
75704 |
|
|
弹 簧 刚 度(N/m) |
|||||||||||
|
168.28 |
224.40 |
299.24 |
399.06 |
532.14 |
709.62 |
946.30 |
||||||
|
84.14 |
112.20 |
149.62 |
199.53 |
266.07 |
354.81 |
473.15 |
||||||
|
56.09 |
74.80 |
99.75 |
133.02 |
177.38 |
236.54 |
315.43 |
||||||
|
42.07 |
56.10 |
74.81 |
99.76 |
133.04 |
177.40 |
236.57 |
||||||
|
28.04 |
37.40 |
49.87 |
66.51 |
88.69 |
118.27 |
157.72 |
||||||
|
21.04 |
28.05 |
37.41 |
49.88 |
66.52 |
88.70 |
118.29 |
||||||
续表4-10-3 N
|
支 架 编 号 |
位移量(mm) |
|||||||||||
|
08 |
09 |
10 |
11 |
12 |
13 |
14 |
30 |
60 |
90 |
120 |
180 |
240 |
|
50480 |
67312 |
89762 |
119700 |
156424 |
212859 |
283851 |
|
|
|
|
|
|
|
51742 |
68995 |
92006 |
122692 |
160335 |
218180 |
290947 |
|
|
|
|
|
|
|
53004 |
70768 |
94250 |
125685 |
164245 |
223502 |
298043 |
|
|
|
|
|
|
|
54266 |
72360 |
96494 |
128677 |
168156 |
228823 |
305140 |
|
|
|
|
|
|
|
55528 |
74043 |
98738 |
131670 |
172066 |
234145 |
312236 |
|
|
|
|
|
|
|
56790 |
75726 |
100982 |
134662 |
175977 |
239466 |
319832 |
0 |
0 |
1 |
0 |
0 |
0 |
|
58052 |
77409 |
103226 |
137654 |
179888 |
244787 |
326428 |
1 |
2 |
3 |
4 |
6 |
8 |
|
59314 |
79092 |
105470 |
140647 |
183798 |
250109 |
333524 |
2 |
4 |
6 |
8 |
12 |
16 |
|
60576 |
80774 |
107714 |
143639 |
187709 |
255430 |
340621 |
3 |
6 |
9 |
12 |
18 |
24 |
|
61838 |
72457 |
109958 |
146632 |
191619 |
260752 |
347717 |
4 |
8 |
12 |
16 |
24 |
32 |
|
63100 |
84140 |
112202 |
149624 |
195530 |
266073 |
354813 |
5 |
10 |
15 |
20 |
30 |
40 |
|
64362 |
85823 |
114446 |
152616 |
199440 |
271394 |
361909 |
6 |
12 |
18 |
24 |
36 |
48 |
|
65624 |
87506 |
116690 |
155609 |
203351 |
276716 |
369005 |
7 |
14 |
21 |
28 |
42 |
56 |
|
66886 |
89188 |
118934 |
158601 |
207261 |
282037 |
376102 |
8 |
16 |
24 |
32 |
48 |
64 |
|
68148 |
90871 |
121178 |
161594 |
211172 |
287359 |
383198 |
9 |
18 |
27 |
36 |
54 |
72 |
|
69410 |
92554 |
123422 |
164586 |
215083 |
292680 |
390294 |
10 |
20 |
30 |
40 |
60 |
80 |
|
70672 |
94237 |
125666 |
167578 |
218994 |
298001 |
397390 |
11 |
22 |
33 |
44 |
66 |
88 |
|
71934 |
95920 |
127910 |
170571 |
222904 |
303323 |
404486 |
12 |
24 |
36 |
48 |
72 |
96 |
|
73196 |
97602 |
’130154 |
173563 |
226814 |
308644 |
415583 |
13 |
26 |
39 |
52 |
78 |
104 |
|
74458 |
99285 |
132398 |
176556 |
230725 |
313966 |
418679 |
14 |
28 |
42 |
56 |
84 |
112 |
|
75720 |
100968 |
134642 |
179548 |
234636 |
319287 |
425775 |
15 |
30 |
45 |
60 |
90 |
120 |
|
76982 |
102651 |
136886 |
182540 |
238547 |
324608 |
432871 |
16 |
32 |
48 |
64 |
96 |
128 |
|
78244 |
104334 |
139130 |
185533 |
242457 |
329930 |
439967 |
17 |
34 |
51 |
68 |
102 |
136 |
|
79505 |
106016 |
141374 |
188525 |
256368 |
335251 |
447064 |
18 |
36 |
54 |
72 |
108 |
144 |
|
80768 |
107699 |
143618 |
191518 |
250278 |
340573 |
454160 |
19 |
38 |
57 |
76 |
114 |
152 |
|
82030 |
109382 |
145862 |
194510 |
254189 |
345894 |
461256 |
20 |
40 |
60 |
80 |
120 |
160 |
|
83292 |
111065 |
148106 |
197502 |
258100 |
351215 |
468352 |
21 |
42 |
63 |
84 |
126 |
168 |
|
84554 |
112748 |
150350 |
200495 |
262010 |
346537 |
475448 |
22 |
44 |
66 |
88 |
132 |
176 |
|
85816 |
114430 |
152594 |
203487 |
265921 |
361858 |
482545 |
23 |
46 |
69 |
92 |
138 |
184 |
|
87078 |
116113 |
154838 |
206480 |
269831 |
367180 |
489641 |
24 |
48 |
72 |
96 |
144 |
192 |
|
88340 |
117796 |
157082 |
209472 |
273742 |
372501 |
496737 |
25 |
50 |
75 |
100 |
150 |
200 |
|
89602 |
119479 |
159326 |
212464 |
277653 |
377822 |
503833 |
26 |
52 |
78 |
104 |
156 |
208 |
|
90864 |
121162 |
161570 |
215457 |
281563 |
383144 |
510929 |
27 |
54 |
81 |
108 |
162 |
216 |
|
92126 |
122844 |
163814 |
218449 |
285474 |
388465 |
518026 |
28 |
56 |
84 |
112 |
168 |
224 |
|
93388 |
124527 |
166058 |
221442 |
289384 |
393787 |
525122 |
29 |
58 |
87 |
114 |
174 |
232 |
|
94650 |
126210 |
168302 |
224434 |
293295 |
399108 |
532218 |
30 |
60 |
90 |
120 |
180 |
240 |
|
95912 |
127893 |
170546 |
227426 |
297206 |
404429 |
539314 |
|
|
|
|
|
|
|
97174 |
129576 |
172790 |
230419 |
301116 |
409751 |
546410 |
||||||
|
98436 |
131258 |
175034 |
233411 |
305027 |
415072 |
553507 |
||||||
|
99698 |
132941 |
177278 |
236404 |
308937 |
420394 |
560603 |
||||||
|
100960 |
134624 |
179522 |
239396 |
312848 |
425715 |
567699 |
||||||
|
弹 簧 刚 度 (N/m) |
||||||||||||
|
1262.00 |
1682.80 |
2244.00 |
2992.40 |
3910.60 |
5321.40 |
7096.20 |
|
|||||
|
631.00 |
841.40 |
1122.00 |
1496.20 |
1955.30 |
2660.70 |
3548.10 |
|
|||||
|
420.67 |
560.93 |
748.00 |
997.47 |
1303.53 |
1773.80 |
2365.40 |
|
|||||
|
315.50 |
420.70 |
561.00 |
748.10 |
977.65 |
1330.35 |
1774.05 |
|
|||||
|
210.33 |
280.47 |
374.00 |
498.73 |
651.77 |
886.90 |
1182.70 |
|
|||||
|
157.75 |
210.35 |
280.50 |
374.05 |
488.83 |
665.18 |
887.03 |
|
|||||
表4-10-4 DTDB型单排叁组组合弹簧箱载荷、位移、刚度选用表 N
|
变形量(mm) |
支 架 编 号 |
|||||||||||
|
240 |
180 |
120 |
90 |
60 |
30 |
01 |
02 |
03 |
04 |
05 |
06 |
07 |
|
320 |
240 |
160 |
120 |
80 |
40 |
10096 |
13464 |
17955 |
23944 |
31928 |
42579 |
56779 |
|
328 |
246 |
614 |
123 |
82 |
41 |
10348 |
13801 |
18404 |
24543 |
32726 |
43643 |
58198 |
|
336 |
252 |
168 |
126 |
84 |
42 |
10601 |
14137 |
18852 |
25143 |
33524 |
44708 |
59618 |
|
344 |
258 |
172 |
129 |
86 |
43 |
10853 |
14474 |
19301 |
25740 |
34323 |
45772 |
61037 |
|
352 |
264 |
176 |
132 |
88 |
44 |
11106 |
14810 |
19750 |
26338 |
35121 |
46837 |
62457 |
|
360 |
270 |
180 |
135 |
90 |
45 |
11358 |
15147 |
20199 |
26937 |
35919 |
47901 |
63876 |
|
368 |
276 |
184 |
138 |
92 |
46 |
11610 |
15484 |
20648 |
27536 |
36717 |
48965 |
65295 |
|
376 |
282 |
188 |
141 |
94 |
47 |
11863 |
15820 |
21097 |
28134 |
37515 |
50030 |
66715 |
|
384 |
288 |
192 |
144 |
96 |
48 |
12115 |
16157 |
21546 |
28733 |
38314 |
51094 |
68134 |
|
392 |
294 |
196 |
147 |
98 |
49 |
12368 |
16493 |
21994 |
29331 |
39112 |
52159 |
69554 |
|
400 |
300 |
200 |
150 |
100 |
50 |
12620 |
16830 |
22443 |
29930 |
39910 |
53223 |
70973 |
|
408 |
306 |
204 |
153 |
102 |
51 |
12873 |
17167 |
22892 |
30529 |
40708 |
54288 |
72393 |
|
416 |
312 |
208 |
156 |
104 |
52 |
13125 |
17503 |
23341 |
31127 |
41506 |
55352 |
73812 |
|
424 |
318 |
212 |
159 |
106 |
53 |
13377 |
17840 |
23790 |
31726 |
42305 |
56416 |
75232 |
|
432 |
324 |
216 |
162 |
108 |
54 |
13630 |
18176 |
24239 |
32324 |
43103 |
57481 |
76651 |
|
440 |
330 |
220 |
165 |
110 |
55 |
13882 |
18513 |
24688 |
32923 |
43901 |
58545 |
78070 |
|
448 |
336 |
224 |
168 |
112 |
56 |
14135 |
18850 |
25136 |
33521 |
44699 |
59610 |
79490 |
|
456 |
342 |
228 |
171 |
114 |
57 |
14387 |
19186 |
25585 |
34120 |
45498 |
60674 |
80909 |
|
464 |
348 |
232 |
174 |
116 |
58 |
14639 |
19523 |
26034 |
34719 |
46296 |
61739 |
82329 |
|
472 |
354 |
236 |
177 |
118 |
59 |
14892 |
19859 |
26483 |
35317 |
47094 |
62803 |
83748 |
|
480 |
360 |
240 |
180 |
120 |
60 |
15144 |
20196 |
26932 |
35916 |
47892 |
63867 |
85168 |
|
488 |
366 |
244 |
183 |
122 |
61 |
15397 |
20533 |
27381 |
36514 |
48690 |
64932 |
86587 |
|
496 |
372 |
248 |
186 |
124 |
62 |
15649 |
20869 |
27830 |
37113 |
49489 |
65996 |
88007 |
|
504 |
378 |
252 |
189 |
126 |
63 |
15902 |
21206 |
28278 |
37712 |
50287 |
67061 |
89426 |
|
512 |
384 |
256 |
192 |
128 |
64 |
16154 |
21543 |
28727 |
38310 |
51085 |
68125 |
90846 |
|
520 |
390 |
260 |
195 |
130 |
65 |
16406 |
21879 |
29176 |
38909 |
51883 |
69190 |
92265 |
|
528 |
396 |
264 |
198 |
132 |
66 |
16659 |
22216 |
29625 |
39507 |
52681 |
70254 |
93684 |
|
536 |
402 |
268 |
201 |
134 |
67 |
16911 |
22552 |
30074 |
40106 |
53480 |
71318 |
95104 |
|
544 |
408 |
272 |
204 |
136 |
68 |
17164 |
22889 |
30523 |
40705 |
54276 |
72383 |
96523 |
|
552 |
414 |
276 |
207 |
138 |
69 |
17416 |
23225 |
30972 |
41303 |
55076 |
73447 |
97943 |
|
560 |
420 |
280 |
210 |
140 |
70 |
17668 |
23562 |
31420 |
41902 |
55874 |
74512 |
99362 |
|
568 |
426 |
284 |
213 |
142 |
71 |
17921 |
23899 |
31869 |
42500 |
56672 |
75576 |
100782 |
|
576 |
432 |
288 |
216 |
144 |
72 |
18173 |
24235 |
32318 |
43099 |
57471 |
76641 |
102201 |
|
584 |
438 |
292 |
219 |
146 |
73 |
18426 |
24572 |
32767 |
43698 |
58269 |
77705 |
103621 |
|
592 |
444 |
296 |
222 |
148 |
74 |
18678 |
24908 |
33216 |
44296 |
59067 |
78769 |
105040 |
|
600 |
450 |
300 |
225 |
150 |
75 |
18931 |
25245 |
33665 |
44895 |
59865 |
79834 |
106459 |
|
608 |
456 |
304 |
228 |
152 |
76 |
19183 |
25582 |
34114 |
45493 |
60664 |
80898 |
107879 |
|
616 |
462 |
308 |
231 |
154 |
77 |
19435 |
25918 |
34563 |
46092 |
61462 |
81963 |
109298 |
|
624 |
468 |
312 |
234 |
156 |
78 |
19688 |
26255 |
35011 |
46690 |
62260 |
83027 |
110718 |
|
632 |
474 |
316 |
237 |
158 |
79 |
19940 |
26591 |
35460 |
47289 |
63058 |
84092 |
112137 |
|
640 |
480 |
320 |
240 |
160 |
80 |
20193 |
26928 |
35909 |
47888 |
63856 |
85156 |
113557 |
|
|
弹 簧 刚 度(N/m) |
|||||||||||
|
252.42 |
336.60 |
448.86 |
598.59 |
798.21 |
1064.43 |
1419.45 |
||||||
|
126.21 |
168.30 |
224.43 |
299.29 |
399.11 |
532.21 |
709.72 |
||||||
|
84.14 |
112.20 |
149.62 |
199.53 |
266.07 |
354.81 |
473.15 |
||||||
|
63.10 |
84.15 |
112.21 |
149.65 |
199.55 |
266.11 |
354.86 |
||||||
|
42.07 |
56.10 |
74.81 |
99.77 |
133.04 |
177.41 |
236.58 |
||||||
|
31.55 |
42.08 |
56.11 |
74.82 |
99.78 |
133.05 |
177.43 |
||||||
续表4-10-4 N
|
支 架 编 号 |
位移量(mm) |
|||||||||||
|
08 |
09 |
10 |
11 |
12 |
13 |
14 |
30 |
60 |
90 |
120 |
180 |
240 |
|
75720 |
100968 |
134643 |
179550 |
234636 |
319289 |
425776 |
|
|
|
|
|
|
|
77613 |
103492 |
138009 |
184039 |
240502 |
327271 |
436421 |
|
|
|
|
|
|
|
79506 |
106016 |
141375 |
188527 |
246367 |
335253 |
447065 |
|
|
|
|
|
|
|
81399 |
108541 |
144741 |
193016 |
252234 |
343235 |
457709 |
|
|
|
|
|
|
|
83292 |
111065 |
148107 |
197504 |
285100 |
351217 |
468354 |
|
|
|
|
|
|
|
85185 |
113589 |
151473 |
201993 |
263966 |
359199 |
478998 |
0 |
0 |
1 |
0 |
0 |
0 |
|
87078 |
116113 |
154839 |
206482 |
269831 |
367181 |
489642 |
1 |
2 |
3 |
4 |
6 |
8 |
|
88971 |
118637 |
158205 |
210970 |
275697 |
375163 |
500287 |
2 |
4 |
6 |
8 |
12 |
16 |
|
90864 |
121162 |
161571 |
215459 |
281563 |
381145 |
510931 |
3 |
6 |
9 |
12 |
18 |
24 |
|
92757 |
123686 |
164937 |
219947 |
287429 |
391127 |
521575 |
4 |
8 |
12 |
16 |
24 |
32 |
|
94650 |
126210 |
168303 |
224436 |
293295 |
399109 |
532220 |
5 |
10 |
15 |
20 |
30 |
40 |
|
96543 |
128734 |
171669 |
228925 |
299160 |
407092 |
542864 |
6 |
12 |
18 |
24 |
36 |
48 |
|
98436 |
131258 |
175035 |
233413 |
305027 |
415074 |
553508 |
7 |
14 |
21 |
28 |
42 |
56 |
|
100329 |
133783 |
178401 |
237902 |
310893 |
423056 |
564152 |
8 |
16 |
24 |
32 |
48 |
64 |
|
102224 |
136307 |
181767 |
242390 |
316759 |
431038 |
574797 |
9 |
18 |
27 |
36 |
54 |
72 |
|
104115 |
138831 |
185133 |
246879 |
322625 |
439020 |
585441 |
10 |
20 |
30 |
40 |
60 |
80 |
|
106008 |
141355 |
188499 |
251368 |
328490 |
447002 |
596085 |
11 |
22 |
33 |
44 |
66 |
88 |
|
107901 |
143879 |
191865 |
255856 |
334356 |
454984 |
606730 |
12 |
24 |
36 |
48 |
72 |
96 |
|
109794 |
146404 |
195231 |
260345 |
340222 |
462966 |
617374 |
13 |
26 |
39 |
52 |
78 |
104 |
|
111687 |
148928 |
198597 |
264833 |
346088 |
470948 |
628018 |
14 |
28 |
42 |
56 |
84 |
112 |
|
113580 |
151452 |
201963 |
269322 |
356954 |
478930 |
638663 |
15 |
30 |
45 |
60 |
90 |
120 |
|
115473 |
153976 |
205329 |
273811 |
357820 |
486913 |
649307 |
16 |
32 |
48 |
64 |
96 |
128 |
|
117366 |
156500 |
208695 |
278299 |
363680 |
494895 |
659951 |
17 |
34 |
51 |
68 |
102 |
136 |
|
119259 |
159025 |
212061 |
282788 |
369552 |
502877 |
670595 |
18 |
36 |
54 |
72 |
108 |
144 |
|
121152 |
161549 |
215427 |
287276 |
375418 |
510859 |
681240 |
19 |
38 |
57 |
76 |
114 |
152 |
|
123045 |
164073 |
218793 |
291765 |
381284 |
518841 |
691884 |
20 |
40 |
60 |
80 |
120 |
160 |
|
124938 |
166597 |
222159 |
296254 |
387149 |
526823 |
702528 |
21 |
42 |
63 |
84 |
126 |
168 |
|
126831 |
169121 |
225525 |
300742 |
393015 |
534805 |
713173 |
22 |
44 |
66 |
88 |
132 |
176 |
|
128724 |
171646 |
228891 |
305231 |
398881 |
542787 |
723817 |
23 |
46 |
69 |
92 |
138 |
184 |
|
130617 |
174170 |
232257 |
309719 |
404747 |
550769 |
734461 |
24 |
48 |
72 |
96 |
144 |
192 |
|
132510 |
176694 |
235623 |
314208 |
410613 |
558751 |
745106 |
25 |
50 |
75 |
100 |
150 |
200 |
|
134403 |
179218 |
238989 |
318697 |
416479 |
566734 |
755750 |
26 |
52 |
78 |
104 |
156 |
208 |
|
136296 |
181742 |
242355 |
323185 |
422345 |
574716 |
766394 |
27 |
54 |
81 |
108 |
162 |
216 |
|
138189 |
184267 |
245721 |
327674 |
428211 |
582698 |
777038 |
28 |
56 |
84 |
112 |
168 |
224 |
|
140082 |
186791 |
249087 |
332162 |
434077 |
590680 |
787683 |
29 |
58 |
87 |
114 |
174 |
232 |
|
141975 |
189315 |
252453 |
336651 |
439943 |
598662 |
798327 |
30 |
60 |
90 |
120 |
180 |
240 |
|
143868 |
191839 |
255819 |
341140 |
445808 |
606644 |
808971 |
|
|
|
|
|
|
|
145761 |
194363 |
259185 |
345628 |
451674 |
614626 |
819611 |
|
|
|
|
|
|
|
147654 |
196888 |
262551 |
350117 |
457540 |
622608 |
830255 |
|
|
|
|
|
|
|
149547 |
199412 |
265917 |
354605 |
463406 |
630590 |
840900 |
|
|
|
|
|
|
|
151440 |
201936 |
269283 |
359094 |
469272 |
638572 |
851549 |
|
|
|
|
|
|
|
弹 簧 刚 度(N/m) |
|
|
|
|
|
|
||||||
|
1893.00 |
2524.20 |
3366.0 |
4488.60 |
5865.90 |
7982.10 |
10644.30 |
||||||
|
946.50 |
1262.10 |
1683.00 |
2244.30 |
2932.95 |
3991.05 |
5322.15 |
|
|||||
|
631.00 |
841.40 |
1122.00 |
1496.20 |
1955.30 |
2660.70 |
3548.10 |
|
|||||
|
473.25 |
631.05 |
841.50 |
1122.15 |
1466.48 |
1995.52 |
2661.08 |
|
|||||
|
946.50 |
420.70 |
561.00 |
748.10 |
977.65 |
1330.35 |
1774.05 |
|
|||||
|
236.63 |
315.53 |
420.75 |
561.08 |
733.24 |
997.76 |
1330.54 |
|
|||||
表4-10-5 DTDC型与ZTDA型组合弹簧箱载荷、位移、刚度选用表 N
|
变形量(mm) |
支 架 编 号 |
|||||||||||
|
240 |
180 |
120 |
90 |
60 |
30 |
01 |
02 |
03 |
04 |
05 |
06 |
07 |
|
320 |
240 |
160 |
120 |
80 |
40 |
13461 |
17952 |
23940 |
31925 |
42571 |
56772 |
75705 |
|
328 |
246 |
164 |
123 |
82 |
41 |
13798 |
18401 |
24538 |
32724 |
43635 |
58191 |
77598 |
|
336 |
252 |
168 |
126 |
84 |
42 |
14134 |
18850 |
25137 |
33522 |
44699 |
59610 |
79490 |
|
344 |
258 |
172 |
129 |
86 |
43 |
14471 |
19298 |
25735 |
34320 |
45763 |
61030 |
81383 |
|
352 |
264 |
176 |
132 |
88 |
44 |
14807 |
19747 |
26234 |
35118 |
46828 |
62449 |
83275 |
|
360 |
270 |
180 |
135 |
90 |
45 |
15144 |
20196 |
26932 |
35916 |
47892 |
63868 |
85168 |
|
368 |
276 |
184 |
138 |
92 |
46 |
15481 |
20645 |
27530 |
36714 |
28956 |
65287 |
87061 |
|
376 |
282 |
188 |
141 |
94 |
47 |
15817 |
21094 |
28129 |
37512 |
50021 |
66706 |
88953 |
|
384 |
288 |
192 |
144 |
96 |
48 |
16154 |
21542 |
28727 |
38310 |
21085 |
68126 |
90846 |
|
392 |
294 |
196 |
147 |
98 |
49 |
16490 |
21991 |
29326 |
39108 |
52149 |
69545 |
92738 |
|
400 |
300 |
200 |
150 |
100 |
50 |
16827 |
22440 |
29924 |
39907 |
53213 |
70964 |
94631 |
|
408 |
306 |
204 |
153 |
102 |
51 |
17163 |
22889 |
30532 |
40705 |
54278 |
72383 |
96524 |
|
416 |
312 |
208 |
156 |
104 |
52 |
17500 |
23338 |
31121 |
41503 |
55342 |
73803 |
98416 |
|
424 |
318 |
212 |
159 |
106 |
53 |
17836 |
23786 |
31720 |
42301 |
56406 |
75222 |
100309 |
|
432 |
324 |
216 |
162 |
108 |
54 |
18173 |
24235 |
32318 |
43099 |
57471 |
76641 |
102201 |
|
440 |
330 |
220 |
165 |
110 |
55 |
18510 |
24684 |
32917 |
43897 |
58535 |
78060 |
104094 |
|
448 |
336 |
224 |
168 |
112 |
56 |
18846 |
25133 |
33515 |
44695 |
59599 |
79480 |
105987 |
|
456 |
342 |
228 |
171 |
114 |
57 |
19183 |
25582 |
34114 |
45493 |
60663 |
80899 |
107879 |
|
464 |
348 |
232 |
174 |
116 |
58 |
19519 |
26030 |
34712 |
46292 |
61728 |
82318 |
109772 |
|
472 |
354 |
236 |
177 |
118 |
59 |
19856 |
26479 |
35311 |
47090 |
62792 |
83737 |
111664 |
|
480 |
360 |
240 |
180 |
120 |
60 |
20192 |
26928 |
35909 |
47888 |
63856 |
85157 |
113557 |
|
488 |
366 |
244 |
183 |
122 |
61 |
20529 |
27377 |
36508 |
48686 |
64920 |
86576 |
115450 |
|
496 |
372 |
248 |
186 |
124 |
62 |
20866 |
27826 |
37106 |
49484 |
65985 |
87995 |
117342 |
|
504 |
378 |
252 |
189 |
126 |
63 |
21202 |
28274 |
37705 |
50282 |
67049 |
89414 |
119235 |
|
512 |
384 |
256 |
192 |
128 |
64 |
21539 |
28723 |
38303 |
51080 |
68113 |
90834 |
121127 |
|
520 |
390 |
260 |
195 |
130 |
65 |
21875 |
29172 |
38902 |
51878 |
69178 |
92253 |
123020 |
|
528 |
396 |
264 |
198 |
132 |
66 |
22212 |
29621 |
39500 |
52677 |
70242 |
93672 |
124913 |
|
536 |
402 |
268 |
201 |
134 |
67 |
22548 |
30070 |
40099 |
53475 |
71306 |
95091 |
126805 |
|
544 |
408 |
272 |
204 |
136 |
68 |
22885 |
30518 |
40697 |
54273 |
72370 |
96511 |
128698 |
|
552 |
414 |
276 |
207 |
138 |
69 |
23221 |
30967 |
41296 |
55071 |
73435 |
97930 |
130590 |
|
560 |
420 |
280 |
210 |
140 |
70 |
23558 |
31416 |
41894 |
55869 |
74499 |
99349 |
132483 |
|
568 |
426 |
284 |
213 |
142 |
71 |
23895 |
31865 |
42492 |
56667 |
75563 |
100768 |
134376 |
|
576 |
432 |
288 |
216 |
144 |
72 |
24231 |
32314 |
43091 |
57465 |
76628 |
102187 |
136268 |
|
584 |
438 |
292 |
219 |
146 |
73 |
24568 |
32762 |
43689 |
58263 |
77692 |
103607 |
138161 |
|
592 |
444 |
296 |
222 |
148 |
74 |
24904 |
33211 |
44288 |
59061 |
78756 |
105026 |
140053 |
|
600 |
450 |
300 |
225 |
150 |
75 |
25241 |
33660 |
44886 |
59860 |
79820 |
106445 |
141946 |
|
608 |
456 |
304 |
228 |
152 |
76 |
25577 |
34109 |
45485 |
60658 |
80885 |
107864 |
143839 |
|
616 |
462 |
308 |
231 |
154 |
77 |
25914 |
34558 |
46083 |
61456 |
81949 |
109284 |
145731 |
|
624 |
468 |
312 |
234 |
156 |
78 |
26250 |
35006 |
46682 |
62254 |
83013 |
110703 |
147624 |
|
632 |
474 |
316 |
237 |
158 |
79 |
26587 |
35455 |
47280 |
63052 |
84078 |
112122 |
149516 |
|
640 |
480 |
320 |
240 |
160 |
80 |
26924 |
35904 |
47879 |
63850 |
85142 |
112541 |
151409 |
|
|
弹 簧 刚 度 (N/m) |
|||||||||||
|
336.56 336.56 |
448.80 448.80 |
598.48 598.48 |
798.12 798.12 |
1064.28 1064.28 |
1419.24 1419.24 |
1892.60 1892.60 |
||||||
|
268.28 |
224.40 |
299.24 |
399.06 |
532.14 |
709.62 |
946.30 |
||||||
|
112.19 |
149.60 |
199.49 |
266.04 |
354.76 |
473.08 |
630.87 |
||||||
|
84.14 |
112.20 |
149.62 |
199.53 |
266.07 |
354.81 |
473.15 |
||||||
|
56.09 |
74.80 |
99.75 |
133.02 |
177.38 |
236.54 |
315.43 |
||||||
|
42.07 |
56.10 |
74.81 |
99.77 |
133.04 |
177.41 |
236.58 |
||||||
续表4-10-5 N
|
支 架 编 号 |
位移量(mm) |
|||||||||||
|
08 |
09 |
10 |
11 |
12 |
13 |
14 |
30 |
60 |
90 |
120 |
180 |
240 |
|
100960 |
134624 |
179524 |
239400 |
312848 |
425718 |
567702 |
|
|
|
|
|
|
|
103484 |
137990 |
184012 |
245385 |
320669 |
436361 |
581894 |
|
|
|
|
|
|
|
106008 |
141355 |
188500 |
251370 |
328490 |
447004 |
596087 |
|
|
|
|
|
|
|
108532 |
144721 |
192988 |
257354 |
336312 |
457646 |
610279 |
|
|
|
|
|
|
|
111056 |
148086 |
197476 |
263339 |
344133 |
468289 |
624472 |
|
|
|
|
|
|
|
113580 |
151452 |
201964 |
269324 |
351954 |
478932 |
638664 |
0 |
0 |
1 |
0 |
0 |
0 |
|
116104 |
154848 |
206452 |
275309 |
359775 |
489575 |
652856 |
1 |
2 |
3 |
4 |
6 |
8 |
|
118628 |
158183 |
310940 |
281294 |
367596 |
500218 |
667049 |
2 |
4 |
6 |
8 |
12 |
16 |
|
121152 |
161549 |
215428 |
287278 |
375418 |
510860 |
681241 |
3 |
6 |
9 |
12 |
18 |
24 |
|
123678 |
164914 |
219916 |
293263 |
383239 |
521503 |
695434 |
4 |
8 |
12 |
16 |
24 |
32 |
|
126200 |
168280 |
224404 |
299248 |
391060 |
532146 |
709626 |
5 |
10 |
15 |
20 |
30 |
40 |
|
128724 |
170646 |
228892 |
305233 |
398881 |
542789 |
723818 |
6 |
12 |
18 |
24 |
36 |
48 |
|
131248 |
175011 |
233380 |
311218 |
406702 |
553432 |
738011 |
7 |
14 |
21 |
28 |
42 |
56 |
|
133772 |
178377 |
237868 |
317202 |
414524 |
564074 |
752203 |
8 |
16 |
24 |
32 |
48 |
64 |
|
136296 |
181742 |
242356 |
323187 |
422345 |
574717 |
766396 |
9 |
18 |
27 |
36 |
54 |
72 |
|
138820 |
185108 |
246844 |
329172 |
430166 |
585360 |
780588 |
10 |
20 |
30 |
40 |
60 |
80 |
|
141344 |
188474 |
251332 |
335157 |
437987 |
596003 |
794780 |
11 |
22 |
33 |
44 |
66 |
88 |
|
143868 |
191839 |
255820 |
341142 |
445808 |
606646 |
808973 |
12 |
24 |
36 |
48 |
72 |
96 |
|
146392 |
195205 |
260308 |
347126 |
453630 |
617288 |
823165 |
13 |
26 |
39 |
52 |
78‘ |
104 |
|
148916 |
198570 |
264796 |
353111 |
461451 |
627931 |
837358 |
14 |
28 |
42 |
56 |
84 |
112 |
|
151440 |
201936 |
269284 |
359096 |
469272 |
638574 |
851550 |
15 |
30 |
45 |
60 |
90 |
120 |
|
153964 |
205302 |
273772 |
365081 |
477093 |
649217 |
865742 |
16 |
32 |
48 |
64 |
96 |
128 |
|
156488 |
208667 |
278260 |
371066 |
484914 |
659860 |
879935 |
17 |
34 |
51 |
68 |
102 |
136 |
|
159012 |
212033 |
282748 |
377050 |
492736 |
670502 |
894127 |
18 |
36 |
54 |
72 |
108 |
144 |
|
161536 |
215398 |
287236 |
383035 |
500557 |
681145 |
908320 |
19 |
38 |
57 |
76 |
114 |
152 |
|
164060 |
218764 |
291724 |
389020 |
508378 |
691788 |
922512 |
20 |
40 |
60 |
80 |
120 |
160 |
|
166584 |
222130 |
296212 |
395005 |
516199 |
702431 |
936704 |
21 |
42 |
63 |
84 |
126 |
168 |
|
169108 |
225495 |
300700 |
400990 |
524020 |
713074 |
950897 |
22 |
44 |
66 |
88 |
132 |
176 |
|
171632 |
228861 |
305188 |
406974 |
531842 |
723716 |
965089 |
23 |
46 |
69 |
92 |
138 |
184 |
|
174156 |
232226 |
309676 |
412959 |
539663 |
734359 |
979282 |
24 |
48 |
72 |
96 |
144 |
192 |
|
176680 |
235592 |
314164 |
418944 |
547484 |
745002 |
993474 |
25 |
50 |
75 |
100 |
150 |
200 |
|
179204 |
238958 |
318652 |
424929 |
555305 |
755645 |
1007666 |
26 |
52 |
78 |
104 |
156 |
208 |
|
181728 |
242323 |
323140 |
430914 |
563126 |
766288 |
1021859 |
27 |
54 |
81 |
108 |
162 |
216 |
|
184252 |
245689 |
327628 |
436898 |
570948 |
776930 |
1036051 |
28 |
56 |
84 |
112 |
168 |
224 |
|
186776 |
249054 |
332116 |
442883 |
578769 |
787573 |
1050244 |
29 |
58 |
87 |
114 |
174 |
232 |
|
189300 |
252420 |
336604 |
448868 |
586590 |
798216 |
1064436 |
30 |
60 |
90 |
120 |
180 |
240 |
|
191824 |
255786 |
341092 |
454853 |
594411 |
808859 |
1078628 |
|
|
|
|
|
|
|
194348 |
259151 |
345580 |
460838 |
602232 |
819502 |
1092821 |
||||||
|
196872 |
262517 |
350068 |
466822 |
610054 |
830144 |
1107013 |
||||||
|
199396 |
265882 |
354556 |
472807 |
617875 |
840787 |
1121206 |
||||||
|
201920 |
269248 |
359044 |
478792 |
625696 |
851430 |
1135398 |
||||||
|
弹 簧 刚 度 (N/m) |
||||||||||||
|
2524.00 |
3365.60 |
4488.00 |
5984.80 |
7821.20 |
10642.80 |
1 4192.40 |
||||||
|
1262.00 |
1682.80 |
2244.00 |
2992.40 |
3910.60 |
5321.40 |
7096.20 |
|
|||||
|
841.33 |
1121.87 |
1496.00 |
1994.93 |
2607.07 |
3547.60 |
4730.80 |
|
|||||
|
631.00 |
841.40 |
1122.00 |
1496.20 |
1955.30 |
2660.70 |
3548.10 |
|
|||||
|
420.67 |
560.93 |
748.00 |
997.46 |
1303.53 |
1773.80 |
2365.40 |
|
|||||
|
315.50 |
420.70 |
561.00 |
748.00 |
977.65 |
1330.35 |
1774.05 |
|
|||||
表4-10-6 ZTDB型正方形重载弹簧箱载荷、位移、刚度选用表 N
|
变形量(mm) |
支 架 编 号 |
|||||||||||
|
240 |
180 |
120 |
90 |
60 |
30 |
01 |
02 |
03 |
04 |
05 |
06 |
07 |
|
320 |
240 |
160 |
120 |
80 |
40 |
30288 |
40392 |
53864 |
71832 |
95784 |
127737 |
170336 |
|
328 |
246 |
164 |
123 |
82 |
41 |
31045 |
41402 |
55211 |
73628 |
98178 |
130930 |
174595 |
|
336 |
252 |
168 |
126 |
84 |
42 |
31802 |
42412 |
56557 |
75424 |
100573 |
134123 |
178853 |
|
344 |
258 |
172 |
129 |
86 |
43 |
32559 |
43421 |
57904 |
77219 |
102968 |
137316 |
183111 |
|
352 |
264 |
176 |
132 |
88 |
44 |
33317 |
44431 |
59250 |
79015 |
105362 |
140510 |
187370 |
|
360 |
270 |
180 |
135 |
90 |
45 |
34074 |
45441 |
60597 |
80811 |
107757 |
143703 |
191628 |
|
368 |
276 |
184 |
138 |
92 |
46 |
34831 |
46451 |
61944 |
82607 |
110152 |
146896 |
195886 |
|
376 |
282 |
188 |
141 |
94 |
47 |
35589 |
47461 |
93290 |
84403 |
112546 |
150090 |
200145 |
|
384 |
288 |
192 |
144 |
96 |
48 |
36346 |
48470 |
64637 |
86198 |
114941 |
153283 |
204403 |
|
392 |
294 |
196 |
147 |
98 |
49 |
37103 |
49480 |
65983 |
87994 |
117336 |
156476 |
208661 |
|
400 |
300 |
200 |
150 |
100 |
50 |
37860 |
50490 |
67330 |
89790 |
119730 |
159669 |
212920 |
|
408 |
306 |
204 |
153 |
102 |
51 |
38618 |
51500 |
68676 |
91586 |
122125 |
162863 |
217178 |
|
416 |
312 |
208 |
156 |
104 |
52 |
39375 |
52510 |
70023 |
93381 |
124519 |
166056 |
221436 |
|
424 |
318 |
212 |
159 |
106 |
53 |
40132 |
53519 |
71370 |
95177 |
126914 |
169249 |
225695 |
|
432 |
324 |
216 |
162 |
108 |
54 |
40889 |
54529 |
72716 |
96973 |
129309 |
172443 |
229953 |
|
440 |
330 |
220 |
165 |
110 |
55 |
41647 |
55539 |
74063 |
98769 |
131703 |
175636 |
234211 |
|
448 |
336 |
224 |
168 |
112 |
56 |
42404 |
56549 |
75409 |
100564 |
134098 |
178829 |
238470 |
|
456 |
342 |
228 |
171 |
114 |
57 |
43161 |
57559 |
76756 |
102360 |
136493 |
182022 |
242728 |
|
464 |
348 |
232 |
174 |
116 |
58 |
43918 |
58568 |
78103 |
104156 |
138887 |
185216 |
246987 |
|
472 |
354 |
236 |
177 |
118 |
59 |
44676 |
59578 |
79449 |
105952 |
141282 |
188409 |
251245 |
|
480 |
360 |
240 |
180 |
120 |
60 |
45433 |
60588 |
80796 |
107748 |
143676 |
191602 |
255503 |
|
488 |
366 |
244 |
183 |
122 |
61 |
46190 |
61598 |
82142 |
10953 |
146071 |
194796 |
259762 |
|
496 |
372 |
248 |
186 |
124 |
62 |
46947 |
62608 |
83489 |
111339 |
148466 |
197989 |
264020 |
|
504 |
378 |
252 |
189 |
126 |
63 |
47705 |
63617 |
84835 |
113135 |
150860 |
201182 |
268278 |
|
512 |
384 |
256 |
192 |
128 |
64 |
48462 |
64627 |
86182 |
114931 |
153255 |
204376 |
272537 |
|
520 |
390 |
260 |
195 |
130 |
65 |
49219 |
65637 |
87529 |
116726 |
155650 |
207569 |
276795 |
|
528 |
396 |
264 |
198 |
132 |
66 |
49976 |
66647 |
88875 |
118522 |
158044 |
210762 |
281053 |
|
536 |
402 |
268 |
201 |
134 |
67 |
50734 |
67657 |
90222 |
120318 |
160439 |
213955 |
285312 |
|
544 |
408 |
272 |
204 |
136 |
68 |
51491 |
68666 |
91568 |
122114 |
162833 |
217149 |
289570 |
|
552 |
414 |
276 |
207 |
138 |
69 |
52248 |
69676 |
92915 |
123909 |
165228 |
220342 |
293828 |
|
560 |
420 |
280 |
210 |
140 |
70 |
53005 |
70686 |
94261 |
125705 |
167623 |
223535 |
298087 |
|
568 |
426 |
284 |
213 |
142 |
71 |
53763 |
71696 |
95608 |
127501 |
170017 |
226729 |
302345 |
|
576 |
432 |
288 |
216 |
144 |
72 |
54520 |
72706 |
96955 |
129297 |
172412 |
229922 |
306603 |
|
584 |
438 |
292 |
219 |
146 |
73 |
55227 |
73715 |
98301 |
131093 |
174807 |
233115 |
310862 |
|
592 |
444 |
296 |
222 |
148 |
74 |
56035 |
74725 |
99648 |
132888 |
177201 |
236308 |
315120 |
|
600 |
450 |
300 |
225 |
150 |
75 |
56792 |
75735 |
100994 |
134684 |
179596 |
239502 |
319378 |
|
608 |
456 |
304 |
228 |
152 |
76 |
57549 |
76745 |
102341 |
136480 |
181991 |
242695 |
323637 |
|
616 |
462 |
308 |
231 |
154 |
77 |
58306 |
77755 |
103688 |
138276 |
184385 |
245888 |
327895 |
|
624 |
468 |
312 |
234 |
156 |
78 |
59064 |
78764 |
105034 |
140071 |
186780 |
249082 |
332154 |
|
632 |
474 |
316 |
237 |
158 |
79 |
59821 |
79774 |
106381 |
141867 |
189174 |
252275 |
336412 |
|
640 |
480 |
320 |
240 |
160 |
80 |
60578 |
80784 |
107727 |
143663 |
191569 |
255468 |
340670 |
|
|
弹 簧 刚 度 (N/m) |
|||||||||||
|
757.26 |
1009.80 |
1346.58 |
1795.77 |
2394.63 |
3193.29 |
4258.35 |
||||||
|
378.63 |
504.90 |
673.29 |
897.88 |
1197.32 |
1596.64 |
2129.17 |
||||||
|
252.42 |
336.60 |
448.86 |
598.59 |
798.21 |
1064.43 |
1419.45 |
||||||
|
189.31 |
252.45 |
336.64 |
448.94 |
598.66 |
798.32 |
1064.59 |
||||||
|
126.21 |
168.30 |
224.43 |
299.30 |
399.11 |
532.22 |
709.73 |
||||||
|
94.66 |
1 36.23 |
168.32 |
224.47 |
299.32 |
399.16 |
532.29 |
||||||
续表4-10-6 N
|
支 架 编 号 |
位移量(mm) |
|||||||||||
|
08 |
09 |
10 |
11 |
12 |
13 |
14 |
30 |
60 |
90 |
120 |
180 |
240 |
|
227160 |
302904 |
403929 |
538650 |
703908 |
957866 |
1277329 |
|
|
|
|
|
|
|
232839 |
310477 |
414027 |
552116 |
721506 |
981812 |
1309262 |
|
|
|
|
|
|
|
238518 |
318049 |
424125 |
565582 |
739103 |
1005758 |
1341195 |
|
|
|
|
|
|
|
244197 |
325622 |
434223 |
579047 |
756701 |
1029704 |
1373128 |
|
|
|
|
|
|
|
249876 |
333194 |
444321 |
592513 |
774299 |
1053651 |
1405061 |
|
|
|
|
|
|
|
255555 |
340767 |
454419 |
605979 |
791897 |
1077597 |
1436994 |
0 |
0 |
1 |
0 |
0 |
0 |
|
261234 |
348340 |
464517 |
619445 |
809494 |
1101543 |
1468927 |
1 |
2 |
3 |
4 |
6 |
8 |
|
266913 |
355912 |
474615 |
632911 |
827092 |
1125490 |
1500860 |
2 |
4 |
6 |
8 |
12 |
16 |
|
272592 |
363485 |
484713 |
646376 |
844690 |
1149436 |
1532793 |
3 |
6 |
9 |
12 |
18 |
24 |
|
278271 |
371057 |
494811 |
659842 |
862287 |
1173382 |
1564726 |
4 |
8 |
12 |
16 |
24 |
32 |
|
283950 |
378630 |
504909 |
673308 |
879885 |
1197328 |
1596659 |
5 |
10 |
15 |
20 |
30 |
40 |
|
289629 |
386203 |
515007 |
686774 |
897483 |
1221275 |
1628591 |
6 |
12 |
18 |
24 |
36 |
48 |
|
295308 |
393775 |
525105 |
700240 |
915080 |
1245221 |
1660524 |
7 |
14 |
21 |
28 |
42 |
56 |
|
300987 |
401348 |
535203 |
713705 |
832678 |
1269167 |
1692457 |
8 |
16 |
24 |
32 |
48 |
64 |
|
306666 |
408920 |
545301 |
727171 |
950276 |
1293114 |
1724390 |
9 |
18 |
27 |
36 |
54 |
72 |
|
312345 |
416193 |
555399 |
740637 |
967874 |
1317060 |
1756323 |
10 |
20 |
30 |
40 |
60 |
80 |
|
318024 |
424066 |
565497 |
754103 |
985471 |
1341006 |
1788256 |
11 |
22 |
33 |
44 |
66 |
88 |
|
323703 |
431638 |
575595 |
767569 |
1003069 |
1364953 |
1820189 |
12 |
24 |
36 |
48 |
72 |
96 |
|
329382 |
439211 |
585693 |
781034 |
1020667 |
1388899 |
1852122 |
13 |
26 |
39 |
52 |
78 |
104 |
|
335061 |
446783 |
595791 |
794500 |
1038264 |
1412845 |
1884055 |
14 |
28 |
42 |
56 |
84 |
112 |
|
340740 |
454356 |
605889 |
807966 |
1055862 |
1436791 |
1915988 |
15 |
30 |
45 |
60 |
90 |
120 |
|
346419 |
461929 |
615987 |
821432 |
1073460 |
1460738 |
1947920 |
16 |
32 |
48 |
64 |
96 |
128 |
|
352098 |
469501 |
626085 |
834898 |
1091058 |
1484684 |
1979853 |
17 |
34 |
51 |
68 |
102 |
136 |
|
357777 |
477074 |
636183 |
848363 |
1108655 |
1508630 |
2011786 |
18 |
36 |
54 |
72 |
108 |
144 |
|
363456 |
484646 |
646281 |
861829 |
1126253 |
1532577 |
2043719 |
19 |
38 |
57 |
76 |
114 |
152 |
|
369135 |
492219 |
656379 |
875295 |
1143851 |
1556523 |
2075652 |
20 |
40 |
60 |
80 |
120 |
160 |
|
374814 |
499792 |
666477 |
888761 |
1161458 |
1580469 |
2107585 |
21 |
42 |
63 |
84 |
126 |
168 |
|
380493 |
507364 |
676575 |
902227 |
1179046 |
1604416 |
2139518 |
22 |
44 |
66 |
88 |
132 |
176 |
|
386172 |
514937 |
686673 |
915692 |
1196644 |
1628362 |
2171451 |
23 |
46 |
69 |
92 |
138 |
184 |
|
391851 |
522509 |
696771 |
929158 |
1214241 |
1652308 |
2203384 |
24 |
48 |
72 |
96 |
144 |
192 |
|
397530 |
530082 |
706869 |
942624 |
1231839 |
1676254 |
2235317 |
25 |
50 |
75 |
100 |
150 |
200 |
|
403209 |
537655 |
716967 |
956090 |
1249437 |
1700201 |
2267249 |
26 |
52 |
78 |
104 |
156 |
208 |
|
408888 |
545227 |
727065 |
969556 |
1267034 |
1724147 |
2299182 |
27 |
54 |
81 |
108 |
162 |
216 |
|
414567 |
552800 |
737261 |
983021 |
1284632 |
1748093 |
2331115 |
28 |
56 |
84 |
112 |
168 |
224 |
|
420246 |
560372 |
747261 |
996487 |
1302230 |
1772040 |
2363048 |
29 |
58 |
87 |
114 |
174 |
232 |
|
425925 |
567945 |
757359 |
1009953 |
1319828 |
1795986 |
2394981 |
30 |
60 |
90 |
120 |
180 |
240 |
|
431604 |
575518 |
767457 |
1023419 |
1337425 |
1819932 |
2426914 |
|
|
|
|
|
|
|
437283 |
583090 |
777555 |
1036885 |
1355023 |
1843879 |
2458847 |
|
|
|
|
|
|
|
442962 |
590663 |
787653 |
1050350 |
1372621 |
1867825 |
2490780 |
|
|
|
|
|
|
|
448641 |
598235 |
797751 |
1063816 |
1390218 |
1891771 |
2522713 |
|
|
|
|
|
|
|
454320 |
605808 |
807849 |
1077282 |
1407816 |
1915717 |
2554646 |
|
|
|
|
|
|
|
弹 簧 刚 度 (N/m) |
|
|
|
|
|
|
||||||
|
5679.00 |
7572.60 |
10098.00 |
13465.80 |
17597.70 |
23946.30 |
31932.90 |
|
|
|
|
|
|
|
2839.50 |
3786.30 |
5049.00 |
6732.90 |
8798.85 |
11973.15 |
15966.45 |
|
|
|
|
|
|
|
2893.00 |
2524.20 |
3366.00 |
4488.60 |
5868.85 |
7982.10 |
10644.30 |
|
|
|
|
||
|
1419.75 |
1893.15 |
2524.50 |
3366.45 |
4399.43 |
5986.57 |
7983.23 |
|
|
|
|||
|
946.50 |
1262.10 |
1683.00 |
2244.30 |
2932.95 |
3991.05 |
5322.15 |
|
|
||||
|
709.88 |
946.58 |
1262.25 |
1683.23 |
2199.71 |
2993.29 |
3991.61 |
|
|||||
表4-10-7 CTD型双排组合弹簧箱载荷、位移、刚度选用表 N
|
变形量(mm) |
支 架 编 号 |
|||||||||||
|
240 |
180 |
120 |
90 |
60 |
30 |
01 |
02 |
03 |
04 |
05 |
06 |
07 |
|
320 |
240 |
160 |
120 |
80 |
40 |
20192 |
26928 |
35909 |
47888 |
63856 |
85158 |
113558 |
|
328 |
246 |
164 |
123 |
82 |
41 |
20697 |
27601 |
36807 |
49085 |
65452 |
87287 |
116396 |
|
336 |
252 |
168 |
126 |
84 |
42 |
21201 |
28274 |
37705 |
50282 |
47049 |
8941 5 |
119235 |
|
344 |
258 |
172 |
129 |
86 |
43 |
21706 |
28948 |
38603 |
51480 |
68645 |
91544 |
122074 |
|
352 |
264 |
176 |
132 |
88 |
44 |
22211 |
29621 |
39500 |
52677 |
70242 |
93673 |
124913 |
|
360 |
270 |
180 |
135 |
90 |
45 |
22716 |
30294 |
40398 |
53874 |
71838 |
95802 |
127752 |
|
368 |
276 |
184 |
138 |
92 |
46 |
23221 |
30967 |
41296 |
55071 |
73434 |
97931 |
130591 |
|
376 |
282 |
188 |
141 |
94 |
47 |
23726 |
31640 |
42193 |
56268 |
75031 |
100060 |
133430 |
|
384 |
288 |
192 |
144 |
96 |
48 |
24231 |
32314 |
43091 |
57466 |
76627 |
102189 |
136269 |
|
392 |
294 |
196 |
147 |
98 |
49 |
24735 |
32987 |
43989 |
58663 |
78224 |
104317 |
139108 |
|
400 |
300 |
200 |
150 |
100 |
50 |
25240 |
33660 |
44887 |
59860 |
79820 |
106446 |
141946 |
|
408 |
306 |
204 |
153 |
102 |
51 |
25745 |
34333 |
45784 |
61057 |
81417 |
108575 |
144785 |
|
416 |
312 |
208 |
156 |
104 |
52 |
26250 |
35006 |
46682 |
62254 |
83013 |
110704 |
147624 |
|
424 |
318 |
212 |
159 |
106 |
53 |
26755 |
35680 |
47580 |
63451 |
84609 |
112833 |
150463 |
|
432 |
324 |
216 |
162 |
108 |
54 |
27260 |
36353 |
48477 |
64649 |
86206 |
114962 |
153302 |
|
440 |
330 |
220 |
165 |
110 |
55 |
27764 |
37026 |
49375 |
65846 |
87802 |
117091 |
156141 |
|
448 |
336 |
224 |
168 |
112 |
56 |
28269 |
37699 |
50273 |
67043 |
89399 |
119219 |
158980 |
|
456 |
342 |
228 |
171 |
114 |
57 |
28774 |
38372 |
51171 |
68240 |
90995 |
121348 |
161819 |
|
464 |
348 |
232 |
174 |
116 |
58 |
29279 |
39046 |
52068 |
69437 |
92591 |
123477 |
164658 |
|
472 |
354 |
236 |
177 |
118 |
59 |
29784 |
39719 |
52966 |
70635 |
94188 |
125606 |
167497 |
|
480 |
360 |
240 |
180 |
120 |
60 |
30289 |
40392 |
53864 |
71832 |
95784 |
127735 |
170335 |
|
488 |
366 |
244 |
183 |
122 |
61 |
30793 |
41065 |
54762 |
73029 |
97381 |
129864 |
173174 |
|
496 |
372 |
248 |
186 |
124 |
62 |
31298 |
41738 |
55659 |
74226 |
98977 |
131993 |
176013 |
|
504 |
378 |
252 |
189 |
126 |
63 |
31803 |
42412 |
56557 |
75423 |
100574 |
134121 |
178852 |
|
512 |
384 |
256 |
192 |
128 |
64 |
32308 |
43085 |
57455 |
76620 |
102170 |
136250 |
181691 |
|
520 |
390 |
260 |
195 |
130 |
65 |
32813 |
43758 |
58352 |
77818 |
103766 |
138379 |
184530 |
|
528 |
396 |
264 |
198 |
132 |
66 |
33318 |
44431 |
59250 |
79015 |
105363 |
140508 |
187369 |
|
536 |
402 |
268 |
201 |
134 |
67 |
33822 |
45104 |
60148 |
80212 |
106959 |
142637 |
190208 |
|
544 |
408 |
272 |
204 |
136 |
68 |
34327 |
45778 |
61046 |
81409 |
108556 |
144766 |
193047 |
|
552 |
414 |
276 |
207 |
138 |
69 |
34832 |
46451 |
91943 |
82606 |
110152 |
146895 |
195886 |
|
560 |
420 |
280 |
210 |
140 |
70 |
35337 |
47124 |
62841 |
83803 |
111749 |
149023 |
198724 |
|
568 |
426 |
284 |
213 |
142 |
71 |
35842 |
47797 |
63739 |
85001 |
113345 |
151152 |
201563 |
|
576 |
432 |
288 |
216 |
144 |
72 |
36347 |
49470 |
64636 |
86198 |
114941 |
153281 |
204402 |
|
584 |
438 |
292 |
219 |
146 |
73 |
36852 |
49144 |
65534 |
87395 |
116538 |
155410 |
207241 |
|
592 |
444 |
296 |
222 |
148 |
74 |
37356 |
49817 |
66432 |
88592 |
118134 |
157539 |
210080 |
|
600 |
450 |
300 |
225 |
150 |
75 |
37861 |
50490 |
67330 |
89789 |
119731 |
159668 |
212919 |
|
608 |
456 |
304 |
228 |
152 |
76 |
38366 |
51163 |
68227 |
90987 |
121327 |
161797 |
215758 |
|
616 |
462 |
308 |
231 |
154 |
77 |
38871 |
51836 |
69125 |
92184 |
122923 |
163926 |
218597 |
|
624 |
468 |
312 |
234 |
156 |
78 |
39376 |
52510 |
70023 |
93381 |
124520 |
166054 |
221436 |
|
632 |
474 |
316 |
237 |
158 |
79 |
39881 |
53183 |
70920 |
94578 |
126116 |
168183 |
224275 |
|
640 |
480 |
320 |
240 |
160 |
80 |
40385 |
53856 |
71818 |
95775 |
127713 |
170312 |
227113 |
|
|
弹 簧 刚 度(N/m) |
|||||||||||
|
504.85 |
673.20 |
897.72 |
1197.18 |
1596.42 |
2128.86 |
2838.90 |
||||||
|
252.42 |
336.60 |
448.86 |
598.59 |
798.21 |
1064.43 |
1419.45 |
||||||
|
168.28 |
224.40 |
299.24 |
399.06 |
532.14 |
709.62 |
946.30 |
||||||
|
126.21 |
168.30 |
224.43 |
299.29 |
399.11 |
532.21 |
709.72 |
||||||
|
84.14 |
112.20 |
149.62 |
199.53 |
266.07 |
354.81 |
473.15 |
||||||
|
63.11 |
84.15 |
112.22 |
149.65 |
199.55 |
266.11 |
354.86 |
||||||
续表4-10-7 N
|
支 架 编 号 |
位移量(mm) |
|||||||||||
|
08 |
09 |
10 |
11 |
12 |
13 |
14 |
30 |
60 |
90 |
120 |
180 |
240 |
|
151440 |
201936 |
269286 |
359100 |
469272 |
638577 |
851553 |
|
|
|
|
|
|
|
155226 |
206984 |
276018 |
368077 |
481004 |
654541 |
872842 |
|
|
|
|
|
|
|
159012 |
212033 |
282750 |
377054 |
492736 |
670505 |
894130 |
|
|
|
|
|
|
|
162798 |
217081 |
289482 |
386032 |
504467 |
686470 |
915419 |
|
|
|
|
|
|
|
166584 |
222130 |
296214 |
395009 |
516199 |
702434 |
936707 |
|
|
|
|
|
|
|
170370 |
227178 |
302946 |
403986 |
527931 |
718398 |
957996 |
0 |
0 |
1 |
0 |
0 |
0 |
|
174156 |
232226 |
309678 |
412963 |
539663 |
734362 |
979285 |
1 |
2 |
3 |
4 |
6 |
8 |
|
177942 |
237275 |
316410 |
421940 |
551395 |
750326 |
1000573 |
2 |
4 |
6 |
8 |
12 |
16 |
|
181728 |
242323 |
323142 |
430918 |
563126 |
766291 |
1021862 |
3 |
6 |
9 |
12 |
18 |
24 |
|
185514 |
247372 |
329874 |
439895 |
574858 |
782255 |
1043150 |
4 |
8 |
12 |
16 |
24 |
32 |
|
189300 |
252420 |
336606 |
448872 |
586590 |
798219 |
1064439 |
5 |
10 |
15 |
20 |
30 |
40 |
|
193086 |
257468 |
343338 |
457849 |
598322 |
814183 |
1085728 |
6 |
12 |
18 |
24 |
36 |
48 |
|
196872 |
262517 |
350070 |
466826 |
610054 |
830147 |
1107016 |
7 |
14 |
21 |
28 |
42 |
56 |
|
200658 |
267565 |
356802 |
475804 |
521785 |
846112 |
1128305 |
8 |
16 |
24 |
32 |
48 |
64 |
|
204444 |
272614 |
363534 |
484781 |
633517 |
862076 |
1149593 |
9 |
18 |
27 |
36 |
54 |
72 |
|
208230 |
277662 |
370266 |
493758 |
645249 |
878040 |
1170882 |
10 |
20 |
30 |
40 |
60 |
80 |
|
202016 |
282710 |
376998 |
502735 |
656981 |
894004 |
1192171 |
11 |
22 |
33 |
44 |
66 |
88 |
|
215802 |
287759 |
383730 |
511712 |
668713 |
909968 |
1213459 |
12 |
24 |
36 |
48 |
72 |
96 |
|
219588 |
292807 |
390462 |
520690 |
680444 |
925933 |
1234748 |
13 |
26 |
39 |
52 |
78 |
104 |
|
223374 |
297856 |
397194 |
529667 |
692176 |
941897 |
1256036 |
14 |
28 |
42 |
56 |
84 |
112 |
|
227160 |
302904 |
403926 |
538644 |
703908 |
957861 |
1277325 |
15 |
30 |
45 |
60 |
90 |
120 |
|
230946 |
307952 |
410658 |
547621 |
715640 |
973825 |
1298614 |
16 |
32 |
48 |
64 |
96 |
128 |
|
234732 |
313001 |
417390 |
556598 |
727372 |
989789 |
1319902 |
17 |
34 |
51 |
68 |
102 |
1 36 |
|
238518 |
318049 |
424122 |
565576 |
739103 |
1005754 |
1341191 |
18 |
36 |
54 |
72 |
108 |
144 |
|
242304 |
323098 |
430854 |
574553 |
750835 |
1021718 |
1362479 |
19 |
38 |
57 |
76 |
114 |
152 |
|
246090 |
328146 |
437586 |
583530 |
762567 |
1037682 |
1383768 |
20 |
40 |
60 |
80 |
120 |
160 |
|
249876 |
333194 |
444318 |
592507 |
774299 |
1053646 |
1405057 |
21 |
42 |
63 |
84 |
126 |
168 |
|
253662 |
338243 |
451050 |
601484 |
786031 |
1069610 |
1426345 |
22 |
44 |
66 |
88 |
132 |
176 |
|
257448 |
343291 |
457782 |
610462 |
797762 |
1085575 |
1447634 |
23 |
46 |
69 |
92 |
138 |
184 |
|
261234 |
348340 |
464514 |
619439 |
809494 |
1101539 |
1468922 |
24 |
48 |
72 |
96 |
144 |
192 |
|
265020 |
353388 |
471246 |
628416 |
821226 |
1117503 |
1490211 |
25 |
50 |
75 |
100 |
150 |
200 |
|
268806 |
358436 |
477978 |
637393 |
832958 |
1133467 |
1511500 |
26 |
52 |
78 |
104 |
156 |
208 |
|
272592 |
363485 |
484710 |
646370 |
844690 |
1149431 |
1532788 |
27 |
54 |
81 |
108 |
162 |
216 |
|
276378 |
363533 |
491442 |
655348 |
856421 |
1165396 |
1554077 |
28 |
56 |
84 |
112 |
168 |
224 |
|
280164 |
373582 |
498174 |
664325 |
868153 |
1181360 |
1575365 |
29 |
58 |
87 |
114 |
174 |
232 |
|
283950 |
378630 |
504906 |
673302 |
879885 |
1197324 |
1596654 |
30 |
60 |
90 |
120 |
180 |
240 |
|
287736 |
383678 |
511638 |
682279 |
891617 |
1213288 |
1617943 |
|
|
|
|
|
|
|
291522 |
388727 |
518370 |
691256 |
903349 |
1229252 |
1639231 |
|
|
|
|
|
|
|
295308 |
393775 |
525102 |
700234 |
915080 |
1245217 |
1660520 |
|
|
|
|
|
|
|
299094 |
398824 |
531834 |
709211 |
926812 |
1261181 |
1681808 |
|
|
|
|
|
|
|
302880 |
403872 |
538566 |
718188 |
938544 |
1277145 |
1703097 |
|
|
|
|
|
|
|
弹 簧 刚 度 (N/m) |
||||||||||||
|
3786.00 |
5048.40 |
6732.00 |
8977.20 |
11731.80 |
15964.20 |
21288.60 |
||||||
|
1893.00 |
2524.20 |
3366.00 |
4488.60 |
5865.90 |
7982.10 |
10644.30 |
|
|||||
|
1262.00 |
1682.80 |
2244.00 |
2992.40 |
3910.60 |
5321.40 |
7096.20 |
|
|||||
|
946.50 |
1262.10 |
1683.00 |
2244.30 |
2932.95 |
3991.05 |
5322.15 |
|
|||||
|
631.00 |
841.40 |
1122.00 |
1496.20 |
1955.30 |
2660.70 |
3548.10 |
|
|||||
|
473.25 |
631.05 |
841.50 |
1122.15 |
1466.48 |
1995.53 |
2661.08 |
|
|||||

图4-10-1 DTDA型单排双组组合弹簧箱 图4-10-2 DTDB型单排叁组组合弹簧箱
图4-10-3 DTDC型单排肆组组合弹簧箱
图4-10-4 ZTDA型正方形重载组合弹簧箱
图4-10-5 ZTDB型正方形重载组合弹簧箱 图4-10-6 CTD型双排组合弹簧箱