第9章 副碟簧微调型特重载荷可变碟簧支吊架
(国家实用新型专利 南通市巨力弹簧吊架有限公司)

CN 201696818 U 权 利 要 求 书 1/1页
1.一种辅碟簧微调型特重载荷可变碟簧支吊架,其特征是:中心位置为一组承担主要设计载荷的主碟簧组合,四角为承担次要设计载荷的四组辅碟簧组合所组成的弹性支承组合形式,由四个压紧辅碟簧组合的调节螺杆和调节螺母所组成的螺旋副,调节四组辅碟簧组合的碟簧负荷。
2.根据权利要求1所述的辅碟簧微调型特重载荷可变碟簧支吊架,其特征是:调节螺杆的端部有包括T字型端部在内的阻止调节螺杆旋转的结构形式。
3.根据权利要求1所述的辅碟簧微调型特重载荷可变碟簧支吊架,其特征是:调整螺母与上板之间有减少摩擦阻力的单向推力球轴承及其防护罩。
4.根据权利要求1所述的辅碟簧微调型特重载荷可变碟簧支吊架,其特征是:主碟簧通过与下板组件相连接的导套作内导向定位;而辅碟簧通过下板底部的导向孔作外导向定位。
5.根据权利要求1所述的辅碟簧微调型特重载荷可变碟簧支吊架,其特征是:其主碟簧组合外围设有交叉防护的内外两层防护罩;而辅碟簧组合则有开放式的侧面排水槽。
6.根据权利要求1所述的辅碟簧微调型特重载荷可变碟簧支吊架,其特征是,内外两层防护罩中,内圈护罩有作为指示标志的端面线,外圈护罩上有基准刻线的指示标牌。
CN 201696818 U 说 明 书 1/3页
辅碟簧微调型特重载荷可变碟簧支吊架
[0001] 技术领域 本实用新型涉及一种由中心为主碟簧组合,四周为辅碟簧组合,并实现微调的特重载荷支撑搁置型可变碟簧支吊架。在特重载荷和变化载荷的条件下,主碟簧组合承担主要工作载荷,而辅碟簧采用微调的方式实现将特重载荷支撑搁置型可变碟簧支吊架调定到工作载荷时设计规定的工作高度,从而使特重工作载荷与碟簧总负荷达到有效的平衡,实现工作载荷的可靠弹性支承。
[0002] 背景技术 我国现有的TD系列可变弹簧支吊架(JB/T 8103.2-1999)适用的工作载荷范围上限是217.384kN,其支撑搁置型(F型)通常采用带螺旋副的荷重柱来调定到工作载荷时设计规定的工作高度。但是,当工作载荷上升到TD系列可变弹簧支吊架工作载荷范围上限的200%或者300%甚至更高时,采用带螺旋副的荷重柱进行工作高度的手工调定十分困难。虽然对于特重载荷支撑搁置型可变碟簧支吊架可以由多个可变碟簧支吊架组合成的特重载荷弹簧箱,但体积比较庞大,当设计不允许增大体积,而且支撑搁置面又不宜过大时就不适用于特重载荷弹簧箱,这就需要采用一种由中心为主碟簧组合,并由四周的辅碟簧组合实现微调的特重载荷支撑搁置型可变碟簧支吊架。
[0003] 实用新型内容 GB/T 1972-2005《碟形弹簧》第5.3.1对单片碟簧在Ho-0.75h。高度时负荷的极限偏差规定为:3类一级精度的单片碟簧是±5%;3类二级精度的单片碟簧是±10%。由此可见,可变碟簧支吊架的碟簧组合实际负荷和理论负荷存在一定的偏差,需要调整;另一方面,理论的设计载荷和现场的实际载荷也不可能完全一致,因此,现场采用人工方法对特重载荷可变碟簧支吊架中的碟簧组合实际负荷和工作高度高度进行微量调整是十分必要的。
[0004] 本实用新型的弹性支承是采用中心位置为一个主碟簧组合(11)和四角为四个辅碟簧组合(16)所组成的弹性支承组合形式。中心主碟簧组合承担总设计载荷的90%,剩余下来的10%载荷由四角四个辅碟簧组合通过预紧予以分别承担。由于微调辅碟簧组合需要调整的载荷只有总设计载荷的10%左右,这样就大大减轻了手工调整时所耗费的劳力。同时,调节螺杆(20)压紧辅碟簧组合(16)的下端端部设计成包括T字型端部在内的阻止调节螺杆旋转的结构形式(图3中的20)。调整螺母(19)与上板(7-1)之间加设了单向推力球轴承(2)(GB/T 301-1995),以在扳动调整螺母(19)时,减少调整螺母(19)与上板(7-1)之间的摩擦阻力。当主碟簧组合负荷在处于上偏差时,或者总实际载荷小于设计载荷时,可将压紧四个辅碟簧组合的调节螺杆(20)上的调整螺母(19)旋松,将辅碟簧组合放松,以减少主副碟簧组合的总负荷;反之,主碟簧组合负荷处于下偏差时,或者总实际载荷大于设计载荷时,可将压住四个辅碟簧组合的调节螺杆(20)上的调整螺母(19)旋紧,将辅碟簧压紧,以增加主副碟簧组合的总负荷。由此主碟簧组合的负荷和四个辅碟簧组合的负荷加起来所产生的主副碟簧组合总负荷可以对总载荷进行有效的平衡,处于有效的弹性支承中。
附图说明
[0005] 图1是正视方向的半剖视图。左边反映正视方向外形,其中局部剖视表达内部结构;右边是两个平行的剖切平面获得的半剖视图。
[0006] 图2是图l的左视图,其中局部剖视表达内部结构。
[0007] 图3是俯视方向的半剖视图。左边反映正视方向外形,其中局部剖视表达内部结构;右边是两个平行的剖切平面获得的半剖视图。
具体实施方式
[0008] 1.结构设计
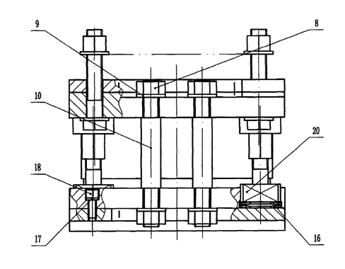
[0009] 以额定载荷和施压后的支撑搁置型可变碟簧支吊架工作高度(H)作为设计的给定条件,根据中心主碟簧组合承担总设计载荷的90%,剩余下来的10%载荷由四角四个辅碟簧组合共同承担的设计原则,按GB/T 1972-2005《碟形弹簧》设计计算出主副碟簧组合的几何参数,并按图1~3决定结构尺寸,计算出荷重管架组件(5-1~4)的理论高度和上板组件(7-1~4)与下板组件(15-1~3)之间的理论间距h,从而决定定位螺栓(10)的定位尺寸h。
[0010] 为了补偿水平方向的位移,在可变碟簧支吊架底部与支撑梁之间采用一层符合GB/T 3625-1999标准,摩擦因数较小的聚四氟乙烯(PTFE)板材作为滑动垫板(13),并用铆钉(12)将滑动垫板(13)与底板(14)相铆合。底板(14)通过螺钉(18)和垫圈(17)与下板(14)相紧固。
[0011] 在碟簧支吊架内部结构中,主碟簧(11)是通过与下板组件(15-1~3)相连接的导套(15-2)作为内导向定位的;而辅碟簧是通过下板(15-1)底部的导向孔作为外导向定位的。其导向件与碟簧之间的间隙均应符合GB/T 1972-2005《碟形弹簧》的相关规定,从而避免各片碟形弹簧相互之间及碟形弹簧与碟簧支吊架相关件之间产生水平方向的滑移。
[0012] 支撑搁置型可变碟簧支吊架所支撑搁置的设备,通过螺栓(21)、垫圈(22)和螺母(23)与支吊架的上板组件(7-1~4)相紧固。为了避免所支撑搁置的设备较高温度传导到可变碟簧支吊架内部的碟形弹簧,而造成碟形弹簧热态时失效,在设备的承载底板和可变碟簧支吊架上板组件(7-1~4)之间安置了陶瓷隔热垫板(6),以采取隔热措施。为了避免陶瓷隔热垫板在直接承压的情况下被压碎或者受到破坏,直接承压部分设计成为荷重板(7-2)和拦板(7-4)形式,以对陶瓷隔热垫板(6)进行保护。
[0013] 为了有效地实现辅碟簧的调节功能和简化制造工艺,调节螺杆(21)的端部设计成包括T字型端部在内的阻止旋转的结构形式(图3中的20)。调整螺母(19)与上板组件(7-1~3)之间加设单向推力球轴承(2)(GB/T 301-1995),并加防尘防潮的轴承外罩(1),内部注入足够的钙基润滑脂3号(SH/T0368-1992),以减少在扳动调整螺母(19)时与上板(7-1)之间的摩擦阻力。
[0014] 为了防止主辅碟簧不因雨淋受潮而锈蚀,影响使用功能和使用寿命,主碟簧组合(11)的外围设有内外两层防护罩(7-3、15-3)进行交叉防护,避免直接雨淋。辅碟簧组合(16)则采用侧面排水槽来及时排水。
[0015] 2.制造与出厂调试
[0016] 按图l~图3的结构型式制造完成之后,即可进入出厂调试阶段。调试在弹簧支吊架测试台上进行。测试时暂不安装定位螺栓(10)和两端的垫圈(9)、螺母(8)。先将四角四个辅碟簧组合处于放松状态,暂时不参加工作,仅由中心主碟簧组合承担工作。然后按90%的总设计载荷对支撑搁置型可变碟簧支吊架施压。此时,如果H的实测值大于计算值以及h的实测值大于计算值时,说明中心主碟簧组合的负荷处于上偏差,应当用切削方式把荷重管架组件(5-1~4)的高度减少,使H的实测值与计算值一致和h的实测值与计算值一致;如果H的实测值小于计算值以及h的实测值小于计算值时,说明中心主碟簧组合的负荷处于下偏差,应当用焊接方式把荷重管架组件(5-1~4)的高度增高,使H的实测值与计算值一致以及h的实测值与计算值一致。
[0017] 90%的总设计载荷施压试验之后,将总设计载荷上升到100%。此时,可将压住四个辅碟簧组合的调节螺杆(20)上的调整螺母(19)旋紧,将辅碟簧压紧,以增加主副碟簧组合的总负荷,于是将上板组件(7-1~4)顶起,可变碟簧支吊架工作高度(H)以及上板组件(7-1~4)与下板组件(15-1~3)之间的理论间距(h)达到设计值。此时,插入定位螺栓(10)、两端的垫圈(9)、螺母(8),并将螺母(8)旋紧,卸除载荷,从试验台上取下。再根据防护外罩(7-3)中的观察槽(7-3-1)中显示的内圈护罩(15-3)端面线作为指示线,将指示标牌(4)的0位指示刻线对准内圈护罩(15-3)端面线,钉上铆钉(3),调试完毕,可以准备出厂。
[0018] 3.安装和现场调试
[0019] 将支撑搁置型可变碟簧支吊架在现场安装后,支撑搁置型可变碟簧支吊架在所支撑搁置的设备的重力作用下,产生载荷。由于定位螺栓(10)、两端的垫圈(9)、螺母(8)的存在,此时可变碟簧支吊架呈暂时的刚性支承状态。即使松开两端的垫圈(9)、螺母(8),但定位螺栓(10)也不容易取出来。应当将调整螺母(19)进行微调,使主碟簧组合的负荷和四个辅碟簧组合的负荷加起来所产生的主副碟簧组合总负荷对总载荷进行有效的平衡。当达到平衡时,就可以把定位螺栓(10)、两端的垫圈(9)、螺母(8)一起拔出来,使总载荷处于有效的弹性支承中。各个可变碟簧支吊架拔出四组定位螺栓之后,可能荷载施加高度或者零位指示线有所偏离,此时应当同时参照荷载施加高度或者零位指示线对四个调整螺母进一步作精细的调整,以达到最理想的平衡状态,使总负荷处于有效的弹性支承中。根据JB/T8103.2-1999的规定,标准安装值的相对偏差度小于10%是属于正常的范围。
CN 201696818 U 说 明 书 附 图 1/3页

图1

图2

图3