第7章 T系列整定式可变弹簧支吊架(西北电力设计院标准)
1 适用范围
T系列整定式可变弹簧支吊架(西北电力设计院标准)适用的载荷范围为196~205800N,最佳位移量为40、45、80、90mm,使用温度范围为-40~120℃。
2 分类和型号表示方法
2.1 型式分类(表4-7-1)
表4-7-1 T系列整定式可变弹簧支吊架型式分类
|
型式分类 |
T1 |
T2 |
上方T3/下方T3A |
T4 |
T5 |
|
结构型式 |
单板连接悬挂型 |
双板连接悬挂型 |
搁置型上下连接型 |
支撑型 |
并联横担型 |
|
名称意义 |
单板整定弹簧组件 |
单板整定弹簧组件 |
上下方整定弹簧组件 |
支架整定弹簧组件 |
横担整定弹簧组件 |
2.2 品种分类(表4-7-2)
表4-7-2 T系列整定式可变弹簧支吊架品种分类
|
品 种 分 类 |
1 |
2 |
|
最大工作变形量/mm |
75 |
150 |
2.3 型号表示方法
最佳热位移量,向下位移时加“-”,mm 冷态载荷,N 弹簧编号,01~20 品种分类代号,见表4-7-2 仅用于T3,当下方整定时加“A”,其余不注 型式分类代号,见表4-7-1 整定式可变弹簧支吊架代号

3 选用范围和外形图
3.1 选用范围
T系列整定式可变弹簧支吊架选用范围见表4-7-3。
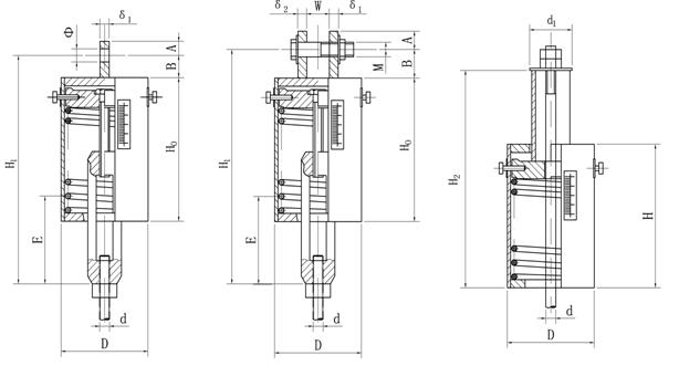
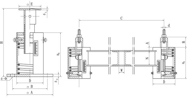
3.2 外形图
T系列整定式可变弹簧支吊架外形图见图4-7-1。
4 弹簧系列选用表
ZH 101~105、ZH201~205号弹簧系列选用表见表4-7-4,ZH 106~120、ZH206~220号弹簧系列选用表见表4-7-5。
5 选型
T系列整定式可变弹簧支吊架的选型详见西北电力设计院《火力发电厂汽水管道支吊架设计手册》“整定式弹簧组件设计选用说明”。
设计使用时应根据支吊架的工作荷载Pgz、位移量△yt及位移方向,按弹簧系列选用表正确选择弹簧。
弹簧系列表中列有弹簧变形量F、荷载及荷载变化系数c′之间的关系。弹簧变形量栏中有绝对变形量与工作范围变形量,而绝对变形量和工作范围变形量是各以弹簧的自由高度和弹簧允许的最小变形量及零点表示的荷载与变形量之间的关系。选用时只需用工作范围变形量,而绝对变形量和工作范围变形量仅表示二者的相互关系而已。选用表的右侧为不同的荷载变化系数c′时对应于各种荷载的允许最大热位移量。根据选定的弹簧号及支吊架弹簧组件型式,最后可选定整定弹簧组件的标号。
6 安装和调试
T系列整定弹簧组件外壳上有载荷—变形量指示牌,其中,H表示运行(工作)载荷位置,C表示冷态(安装)载荷位置。
T系列整定弹簧组件安装后,在管道水压试验之前,不得将定位销拔出。水压试验时,由于定位销的锁定,使整定弹簧组件暂时成为刚性吊架。水压试验后,可按下列方法取出定位销:
当定位销向上倾斜时,表示整定弹簧组件呈过载状态,即实际载荷已超过整定载荷,此时应将花兰螺丝放松,使定位销恢复水平位置;当定位销向下倾斜时,表示载荷不足,应将花兰螺丝旋紧,使定位销恢复水平位置,后取出定位销。运行前应检查提示器是否在C处,运行中,应检查提示器是否在H处。C与H之间的相对变形量即为管道热位移值。


T1型 T2型 T3(T3A)型

T4型 T5型
图4-7-1 T系列整定式可变弹簧支吊架外形图
表4-7-4 ZH101~105、ZH201~205号弹簧系列选用表
|
|
弹簧工作范围内 变形量F |
弹簧号 |
荷载变化系数C' |
|||||||||||||||||||
|
01 |
02 |
03 |
04 |
05 |
||||||||||||||||||
|
ZH1型 |
ZH2型 |
荷载 (N) |
≤0.35 |
≤0.25 |
≤0.20 |
|||||||||||||||||
|
弹
簧
工
作
范
围 |
0 |
弹
簧
绝
对
变
形
量
为
F
+
30 |
0 |
弹
簧
绝
对
变
形
量
为
F
+
60 |
196.0 |
301.8 |
462.6 |
713.4 |
1097.6 |
|
|
|
|
|
|
|||||||
|
1 |
2 |
202.5 |
311.9 |
478.0 |
737.2 |
1134.2 |
|
|
|
|
||||||||||||
|
2 |
4 |
209.1 |
322.0 |
493.4 |
761.0 |
1170.8 |
|
|
|
|
||||||||||||
|
3 |
6 |
215.6 |
332.0 |
508.8 |
784.8 |
1207.4 |
|
|
|
|
||||||||||||
|
4 |
8 |
222.1 |
342.1 |
524.2 |
808.6 |
1243.9 |
|
|
|
|
||||||||||||
|
5 |
10 |
228.7 |
352.2 |
539.6 |
832.4 |
1280.5 |
|
|
|
|
||||||||||||
|
6 |
12 |
235.2 |
362.2 |
555.1 |
856.1 |
1317.1 |
|
|
|
|
||||||||||||
|
7 |
14 |
241.8 |
372.3 |
570.5 |
879.9 |
1353.7 |
|
|
|
|
||||||||||||
|
8 |
16 |
248.3 |
382.4 |
585.9 |
903.7 |
1390.3 |
|
|
|
|
||||||||||||
|
9 |
18 |
254.8 |
392.4 |
601.3 |
927.5 |
1426.9 |
|
|
|
|
||||||||||||
|
10 |
20 |
261.4 |
402.5 |
616.7 |
951.3 |
1463.4 |
14 |
28 |
|
|
||||||||||||
|
11 |
22 |
267.9 |
412.6 |
632.1 |
975.1 |
1500.0 |
28.5 |
|
|
|||||||||||||
|
12 |
24 |
274.4 |
422.6 |
647.5 |
998.9 |
1536.6 |
14.5 |
29 |
10.5 |
21 |
||||||||||||
|
13 |
26 |
281.0 |
432.7 |
663.0 |
1022.6 |
1573.2 |
15 |
30 |
21.5 |
|
|
|
|
|||||||||
|
14 |
28 |
287.5 |
442.7 |
678.4 |
1046.4 |
1609.8 |
30.5 |
11 |
22 |
8.5 |
17.5 |
|||||||||||
|
15 |
30 |
294.0 |
452.8 |
693.8 |
1070.2 |
1646.4 |
15.5 |
31.5 |
22.5 |
9 |
18 |
|||||||||||
|
16 |
32 |
300.6 |
462.9 |
709.2 |
1094.0 |
1682.9 |
16 |
32 |
11.5 |
23 |
||||||||||||
|
17 |
34 |
307.1 |
472.9 |
724.6 |
1117.8 |
1719.5 |
32.5 |
23.5 |
18.5 |
|||||||||||||
|
18 |
36 |
313.7 |
483.0 |
740.0 |
1141.6 |
1756.1 |
16.5 |
33.5 |
12 |
24 |
9.5 |
19 |
||||||||||
|
19 |
38 |
320.2 |
493.1 |
755.5 |
1165.3 |
1792.7 |
17 |
34 |
17 |
34 |
24.5 |
12 |
24.5 |
19.5 |
9.5 |
19.5 |
||||||
|
20 |
40 |
326.7 |
503.1 |
770.9 |
1189.1 |
1829.3 |
17.5 |
35 |
17.5 |
35 |
12.5 |
25 |
12.5 |
25 |
10 |
20 |
10 |
20 |
||||
|
21 |
42 |
333.3 |
513.2 |
786.3 |
1212.9 |
1865.9 |
35.5 |
35.5 |
25.5 |
25.5 |
||||||||||||
|
22 |
44 |
339.8 |
523.3 |
801.7 |
1236.7 |
1902.4 |
18 |
36 |
18 |
36 |
13 |
26 |
13 |
26 |
20.5 |
20.5 |
||||||
|
23 |
46 |
346.3 |
533.3 |
817.1 |
1260.5 |
1939.0 |
18.5 |
37 |
18.5 |
37 |
26.5 |
26.5 |
10.5 |
21 |
10.5 |
21 |
||||||
|
24 |
48 |
352.9 |
543.4 |
832.5 |
1284.3 |
1975.6 |
37.5 |
37.5 |
13.5 |
27 |
13.5 |
27 |
21.5 |
21.5 |
||||||||
|
25 |
50 |
359.4 |
553.5 |
847.9 |
1308.1 |
2012.2 |
19 |
38.5 |
19 |
38.5 |
27.5 |
27.5 |
11 |
22 |
11 |
22 |
||||||
|
26 |
52 |
366.0 |
563.5 |
863.4 |
1331.8 |
2048.8 |
38 |
19.5 |
39 |
14 |
28 |
14 |
28 |
|||||||||
|
27 |
54 |
372.5 |
573.6 |
878.8 |
1355.6 |
2085.4 |
18 |
36 |
39.5 |
28.5 |
28.5 |
22.5 |
22.5 |
|||||||||
|
28 |
56 |
379.0 |
583.6 |
894.2 |
1379.4 |
2121.9 |
17 |
34 |
20 |
40.5 |
14.5 |
29 |
14.5 |
29 |
11.5 |
23 |
11.5 |
23 |
||||
|
29 |
58 |
385.6 |
593.7 |
909.6 |
1403.2 |
2158.5 |
16 |
32 |
20.5 |
41 |
29.5 |
29.5 |
23.5 |
23.5 |
||||||||
|
30 |
60 |
392.1 |
603.8 |
925.0 |
1427.0 |
2195.1 |
15 |
30 |
21 |
42 |
15 |
30 |
15 |
30 |
12 |
24 |
12 |
24 |
||||
|
31 |
62 |
398.6 |
613.8 |
940.4 |
1450.8 |
2231.7 |
14 |
28 |
42.5 |
14 |
28 |
30.5 |
||||||||||
|
32 |
64 |
405.2 |
623.9 |
955.9 |
1474.5 |
2268.3 |
13 |
26 |
21.5 |
43 |
13 |
26 |
15.5 |
31 |
24.5 |
24.5 |
||||||
|
33 |
66 |
411.7 |
634.0 |
971.3 |
1498.3 |
2304.9 |
12 |
24 |
22 |
44 |
12 |
24 |
31.5 |
24 |
12.5 |
25 |
||||||
|
34 |
68 |
418.2 |
644.0 |
986.7 |
1522.1 |
2341.4 |
11 |
22 |
44.5 |
11 |
22 |
16 |
32 |
11 |
22 |
25.5 |
||||||
|
35 |
70 |
424.8 |
654.1 |
1002.1 |
1545.9 |
2378.0 |
10 |
20 |
22.5 |
45.5 |
10 |
20 |
32.5 |
10 |
20 |
13 |
26 |
|||||
|
36 |
72 |
431.3 |
664.2 |
1017.5 |
1569.7 |
2414.6 |
9 |
18 |
23 |
46 |
9 |
18 |
16.5 |
33 |
9 |
18 |
||||||
|
37 |
74 |
437.9 |
674.2 |
1032.9 |
1593.5 |
2451.2 |
8 |
16 |
46.5 |
8 |
16 |
33.5 |
8 |
16 |
26.5 |
|||||||
|
38 |
76 |
444.4 |
684.3 |
1048.3 |
1617.3 |
2487.8 |
7 |
14 |
23.5 |
47.5 |
7 |
14 |
17 |
34 |
7 |
14 |
13.5 |
27 |
||||
|
39 |
78 |
450.9 |
694.4 |
1063.8 |
1641.0 |
2524.4 |
6 |
12 |
24 |
48 |
6 |
12 |
34.5 |
6 |
12 |
27.5 |
||||||
|
40 |
80 |
457.5 |
704.4 |
1079.2 |
1664.8 |
2560.9 |
5 |
10 |
24.5 |
49 |
5 |
10 |
17.5 |
35 |
5 |
10 |
14 |
|
||||
|
41 |
82 |
464.0 |
714.5 |
1094.6 |
1688.6 |
2597.5 |
4 |
8 |
49.5 |
4 |
8 |
35.5 |
4 |
8 |
||||||||
|
42 |
84 |
470.5 |
724.6 |
1110.0 |
1712.4 |
2634.1 |
3 |
6 |
25 |
50 |
3 |
6 |
18 |
36 |
3 |
6 |
28.5 |
|||||
|
43 |
86 |
477.1 |
734.6 |
1125.4 |
1736.2 |
2670.7 |
2 |
4 |
25.5 |
51 |
2 |
4 |
36.5 |
2 |
4 |
14.5 |
29 |
|||||
|
44 |
88 |
483.6 |
744.7 |
1140.8 |
1760.0 |
2707.3 |
1 |
2 |
51.5 |
1 |
2 |
18.5 |
37 |
1 |
2 |
29.5 |
||||||
|
45 |
90 |
490.1 |
754.7 |
1156.3 |
1783.7 |
2743.9 |
0 |
0 |
26 |
52.5 |
0 |
0 |
37.5 |
0 |
0 |
15 |
30 |
|||||
|
|
弹簧刚度(N/mm) |
ZH1型 |
ZH2型 |
ZH1型 |
ZH2型 |
ZH1型 |
ZH2型 |
ZH1型 |
ZH2型 |
ZH1型 |
ZH2型 |
ZH1型 |
ZH2型 |
|||||||||
|
ZH1型 |
6.537 |
10.065 |
15.415 |
23.785 |
36.583 |
|||||||||||||||||
|
向上 |
向下 |
向上 |
向下 |
向上 |
向下 |
向上 |
向下 |
向上 |
向下 |
向上 |
向下 |
|||||||||||
|
ZH2型 |
3.263 |
5.027 |
7.713 |
11.887 |
18.297 |
允许最大热位移量(mm) |
||||||||||||||||
注:1.选用举例见西北电力设计院《火力发电厂汽水管道支吊架设计手册》。
2.荷载变化系数栏中表示了弹簧的经济工作范围:对热位移向上者,粗横线之上为经济工作范围;对热位移向下者,粗横线之下为经济工作范围。
表4-7-5 ZH106~120、ZH206~210号弹簧系列选用表
|
|
弹簧工作范围内 变形量F |
弹 簧 号 |
荷载变化系数C' |
||||||||||||||||||||||||||||
|
06 |
07 |
08 |
09 |
10 |
11 |
12 |
13 |
14 |
15 |
16 |
17 |
18 |
19 |
20 |
|||||||||||||||||
|
ZH1型 |
ZH2型 |
荷 载 (N) |
≤0.35 |
≤0.25 |
≤0.20 |
||||||||||||||||||||||||||
|
弹 簧 工 作 范 围 |
0 |
弹 簧 绝 对 变 形 量 F+35 |
0 |
弹 簧 绝 对 变 形 量 F+70 |
1715 |
2283 |
3048 |
4057 |
5400 |
7203 |
9604 |
12809 |
17150 |
22863 |
30458 |
40611 |
53969 |
72030 |
96040 |
|
|
|
|
||||||||
|
1 |
2 |
1764 |
2352 |
3136 |
4175 |
5547 |
7409 |
9878 |
13171 |
17640 |
23520 |
31331 |
41768 |
55507 |
74088 |
98784 |
|||||||||||||||
|
2 |
4 |
1813 |
2421 |
3224 |
4292 |
5704 |
7615 |
10153 |
13534 |
18130 |
24177 |
32203 |
42934 |
57046 |
76146 |
101528 |
|||||||||||||||
|
3 |
6 |
1862 |
2479 |
3303 |
4410 |
5860 |
7820 |
10427 |
13906 |
18620 |
24823 |
33065 |
44090 |
58594 |
78204 |
104272 |
|||||||||||||||
|
4 |
8 |
1911 |
2548 |
3391 |
4528 |
6017 |
8026 |
10702 |
14269 |
19110 |
25480 |
33937 |
45256 |
60133 |
80262 |
107016 |
|||||||||||||||
|
5 |
10 |
1960 |
2617 |
3479 |
4645 |
6164 |
8232 |
10976 |
14631 |
19600 |
26137 |
34810 |
46413 |
61671 |
82320 |
109760 |
|||||||||||||||
|
6 |
12 |
1989 |
2675 |
3567 |
4753 |
6321 |
8438 |
11250 |
15004 |
20090 |
26783 |
35682 |
47569 |
63220 |
84378 |
112504 |
|||||||||||||||
|
7 |
14 |
2058 |
2744 |
3655 |
4871 |
6478 |
8644 |
11525 |
15366 |
20580 |
27440 |
36554 |
48735 |
64758 |
86436 |
115248 |
|||||||||||||||
|
8 |
16 |
2107 |
2813 |
3744 |
4988 |
6625 |
8849 |
11799 |
15729 |
21070 |
28097 |
37416 |
49892 |
66297 |
88494 |
117992 |
|||||||||||||||
|
9 |
18 |
2156 |
2871 |
3832 |
5106 |
6782 |
9055 |
12074 |
16101 |
21560 |
28743 |
38289 |
51058 |
67845 |
90552 |
120736 |
|||||||||||||||
|
10 |
20 |
2205 |
2940 |
3920 |
5223 |
6938 |
9261 |
12348 |
16464 |
22050 |
29400 |
39161 |
52214 |
69384 |
92610 |
123480 |
15.5
|
31.5 |
|
||||||||||||
|
11 |
22 |
2254 |
3009 |
3998 |
5341 |
7095 |
9467 |
12622 |
16827 |
22540 |
30057 |
40033 |
53371 |
70923 |
94668 |
126224 |
16 |
32 |
|||||||||||||
|
12 |
24 |
2303 |
3067 |
4087 |
5449 |
7252 |
9673 |
12897 |
17199 |
23030 |
30703 |
40905 |
54537 |
72471 |
96726 |
128968 |
32.5 |
||||||||||||||
|
13 |
26 |
2352 |
3136 |
4175 |
5566 |
7399 |
9878 |
13171 |
17562 |
23520 |
31360 |
41768 |
55693 |
74010 |
98784 |
131712 |
16.5 |
33.5 |
12 |
24 |
|||||||||||
|
14 |
28 |
2401 |
3205 |
4263 |
5684 |
7556 |
10084 |
13446 |
17924 |
24010 |
32017 |
42640 |
56860 |
75548 |
100842 |
134456 |
17 |
34 |
24.5 |
9.5 |
19.5 |
|
|||||||||
|
15 |
30 |
2450 |
3263 |
4351 |
5802 |
7713 |
10290 |
13720 |
18297 |
24500 |
32663 |
43512 |
58016 |
77097 |
102900 |
137200 |
17.5 |
35 |
12.5 |
25 |
10 |
20 |
|||||||||
|
16 |
32 |
2499 |
3332 |
4439 |
5919 |
7860 |
10496 |
13994 |
18659 |
24990 |
33320 |
44384 |
59172 |
78635 |
104958 |
139944 |
36.5 |
25.5 |
|||||||||||||
|
17 |
34 |
2548 |
3401 |
4528 |
6037 |
8016 |
10702 |
14269 |
19022 |
25480 |
33977 |
45256 |
60339 |
80174 |
107016 |
142688 |
18 |
36 |
13 |
26 |
20.5 |
||||||||||
|
18 |
36 |
2597 |
3459 |
4616 |
6154 |
8173 |
10907 |
14543 |
19394 |
25970 |
34623 |
46119 |
61495 |
81722 |
109074 |
145432 |
18.5 |
37 |
26.5 |
10.5 |
21 |
||||||||||
|
19 |
38 |
2646 |
3528 |
4704 |
6262 |
8330 |
11113 |
14818 |
19757 |
26460 |
35280 |
46991 |
62661 |
83261 |
111132 |
148176 |
37.5 |
13.5 |
27 |
21.5 |
|||||||||||
|
20 |
40 |
2695 |
3597 |
4782 |
6380 |
8477 |
11319 |
15092 |
20119 |
26950 |
35937 |
47863 |
63818 |
84799 |
113190 |
150920 |
19 |
38.5 |
27.5 |
11 |
22 |
||||||||||
|
21 |
42 |
2744 |
3655 |
4871 |
6497 |
8634 |
11525 |
15366 |
20492 |
27440 |
36583 |
48735 |
64974 |
86348 |
115248 |
153664 |
38 |
14 |
28 |
||||||||||||
|
22 |
44 |
2793 |
3724 |
4959 |
6615 |
8791 |
11731 |
15641 |
20854 |
27930 |
37240 |
49608 |
66140 |
87886 |
117306 |
156408 |
18 |
36 |
19.5 |
39.5 |
28.5 |
14 |
28.5 |
22.5 |
11 |
22.5 |
|||||
|
23 |
46 |
2842 |
3793 |
5047 |
6733 |
8947 |
11936 |
15915 |
21217 |
28420 |
37897 |
50470 |
67297 |
89425 |
119364 |
159152 |
17 |
34 |
20 |
40.5 |
14.5 |
29 |
14.5 |
29 |
11.5 |
23 |
11.5 |
23 |
|||
|
24 |
48 |
2891 |
3851 |
5135 |
6850 |
9094 |
12142 |
16190 |
21589 |
28910 |
38543 |
51342 |
68463 |
90973 |
121422 |
161896 |
16 |
32 |
20.5 |
41 |
29.5 |
29.5 |
23.5 |
23.5 |
|||||||
|
25 |
50 |
2940 |
3920 |
5223 |
6958 |
9251 |
12348 |
16464 |
21952 |
29400 |
39200 |
52214 |
69619 |
92512 |
123480 |
164640 |
15 |
30 |
21 |
42 |
15 |
30 |
15 |
30 |
12 |
24 |
12 |
24 |
|||
|
26 |
52 |
2989 |
3989 |
5312 |
7076 |
9408 |
12554 |
16738 |
22315 |
29890 |
39857 |
53087 |
70776 |
94051 |
125538 |
167384 |
14 |
28 |
42.5 |
14 |
28 |
30.5 |
|||||||||
|
27 |
54 |
3038 |
4047 |
5400 |
7193 |
9555 |
12760 |
17013 |
22687 |
30380 |
40503 |
53959 |
71942 |
95599 |
127596 |
170128 |
13 |
26 |
21.5 |
43 |
13 |
26 |
15.5 |
31 |
24.5 |
24.5 |
|||||
|
28 |
56 |
3087 |
4116 |
5478 |
7311 |
9712 |
12965 |
17287 |
23050 |
30870 |
41160 |
54821 |
73098 |
97138 |
129654 |
172872 |
12 |
24 |
22 |
44 |
12 |
24 |
31.5 |
24 |
12.5 |
25 |
|||||
|
29 |
58 |
3136 |
4185 |
5566 |
7428 |
9869 |
13171 |
17562 |
23412 |
31360 |
41817 |
55693 |
74264 |
98676 |
131712 |
175616 |
11 |
22 |
44.5 |
11 |
22 |
16 |
32 |
11 |
22 |
25.5 |
|||||
|
30 |
60 |
3185 |
4243 |
5655 |
7546 |
10025 |
13377 |
17836 |
23785 |
31850 |
42463 |
56566 |
75421 |
100225 |
133770 |
178360 |
10 |
20 |
22.5 |
45.5 |
10 |
20 |
32.5 |
10 |
20 |
13 |
26 |
||||
|
31 |
62 |
3234 |
4312 |
5743 |
7654 |
10172 |
13583 |
18110 |
24147 |
32340 |
43120 |
57438 |
76577 |
101763 |
135828 |
181104 |
9 |
18 |
23 |
46 |
9 |
18 |
16.5 |
33 |
9 |
18 |
|||||
|
32 |
64 |
3283 |
4381 |
5831 |
7771 |
10329 |
13789 |
18385 |
24510 |
32830 |
43777 |
58310 |
77743 |
103302 |
137886 |
183848 |
8 |
16 |
46.5 |
8 |
16 |
33.5 |
8 |
16 |
26.5 |
||||||
|
33 |
66 |
3332 |
4439 |
5919 |
7889 |
10486 |
13994 |
18659 |
24882 |
33320 |
44423 |
59172 |
78900 |
104850 |
139944 |
186592 |
7 |
14 |
23.5 |
47.5 |
7 |
14 |
17 |
34 |
7 |
14 |
13.5 |
27 |
|||
|
34 |
68 |
3381 |
4508 |
6007 |
7027 |
10643 |
14200 |
18934 |
25245 |
33810 |
45080 |
60045 |
80066 |
106389 |
142002 |
189336 |
6 |
12 |
24 |
48 |
6 |
12 |
34.5 |
6 |
12 |
27.5 |
|||||
|
35 |
70 |
3430 |
4577 |
6096 |
8124 |
10790 |
14406 |
19208 |
25607 |
34300 |
45737 |
60917 |
81222 |
107927 |
144060 |
192080 |
5 |
10 |
24.5 |
49 |
5 |
10 |
17.5 |
35 |
5 |
10 |
14 |
28 |
|||
|
36 |
72 |
3479 |
4635 |
6174 |
8242 |
10947 |
14612 |
19482 |
25980 |
34790 |
46383 |
61789 |
82379 |
11476 |
146118 |
194824 |
4 |
8 |
49.5 |
4 |
8 |
35.5 |
4 |
8 |
14.2 |
||||||
|
37 |
74 |
3528 |
4704 |
6262 |
8350 |
11103 |
14818 |
19757 |
26342 |
35280 |
47040 |
62661 |
83545 |
111014 |
148176 |
197568 |
3 |
6 |
25 |
50 |
3 |
6 |
18 |
36 |
3 |
6 |
14.4 |
28.5 |
|||
|
38 |
76 |
3577 |
4773 |
6350 |
8467 |
11260 |
15023 |
20031 |
26705 |
35770 |
47697 |
63524 |
84701 |
112553 |
150234 |
200312 |
2 |
4 |
25.5 |
51 |
2 |
4 |
36.5 |
2 |
4 |
14.6 |
29 |
||||
|
39 |
78 |
3626 |
4831 |
6439 |
8585 |
11407 |
15229 |
20306 |
27077 |
36260 |
48343 |
64396 |
85868 |
114101 |
152292 |
203056 |
1 |
2 |
51.5 |
1 |
2 |
18.5 |
37 |
1 |
2 |
14.8 |
29.5 |
||||
|
40 |
80 |
3675 |
4900 |
6527 |
8702 |
11564 |
15435 |
20580 |
27440 |
36750 |
49000 |
65268 |
87024 |
115640 |
154350 |
205800 |
0 |
0 |
26 |
52.5 |
0 |
0 |
37.5 |
0 |
0 |
15 |
30 |
||||
|
|
弹 簧 刚 度(N/mm) |
ZH1型 |
ZH2型 |
ZH1型 |
ZH2型 |
ZH1型 |
ZH2型 |
ZH1型 |
ZH2型 |
ZH1型 |
ZH2型 |
ZH1型 |
ZH2型 |
||||||||||||||||||
|
ZH1型 |
49.0 |
65.3 |
87.0 |
116.0 |
154.2 |
205.8 |
274.4 |
365.8 |
490.0 |
653.4 |
870.2 |
1160.3 |
1541.5 |
2058.0 |
2744.0 |
向上 |
向下 |
向上 |
向下 |
向上 |
向下 |
||||||||||
|
ZH2型 |
24.5 |
32.7 |
43.5 |
58.0 |
77.1 |
102.9 |
137.2 |
183.0 |
245.0 |
326.6 |
435.1 |
580.2 |
771.0 |
1029.0 |
1372.0 |
允许最大热位移量(mm) |
|||||||||||||||
注:1.选用举例见西北电力设计院《火力发电厂汽水管道支吊架设计手册》。
2.荷载变化系数栏中表示了弹簧的经济工作范围:对热位移向上者,粗横线之上为经济工作范围;对热位移向下者,粗横线之下为经济工作范围。