第3章 HZD、PZD、LZD、LZDZ系列恒力碟簧支吊架(JB/T 10357-2002)
1 功能与特点
HZD、PZD、LZD、LZDZ系列恒力碟簧支吊架采用碟形弹簧(GB/T 1972-2005)作为弹性元件,与恒力圆柱螺旋弹簧支吊架相比,更具有体积小,质量轻,便于工程空间布局和降低工程造价的功能与特点。
2 适用范围
HZD、PZD、LZD、LZDZ系列恒力碟簧支吊架适用的位移范围为50~500mm,载荷范围为500~22400N。
3 载荷位移系列表
载荷位移系列表见表4-3-1。
4 分类和型号表示方法
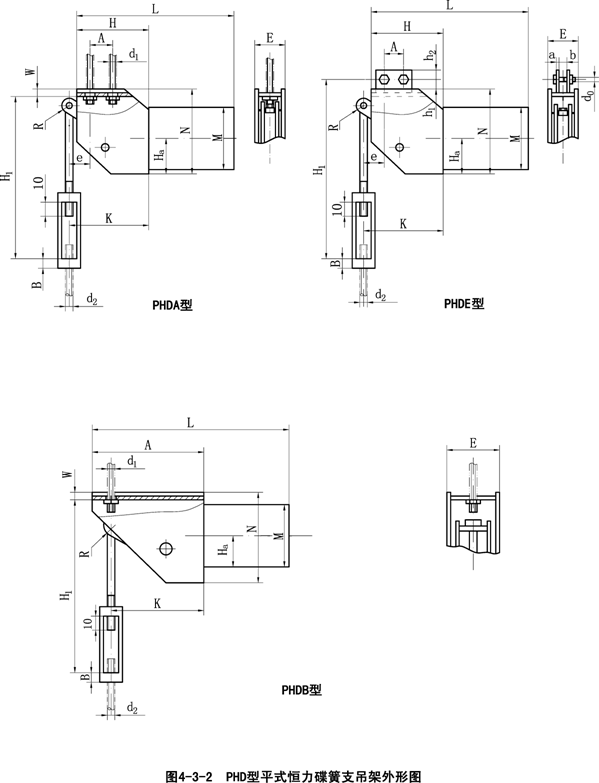
4.1 分类和型式(表4-3-2)
表4-3-2 恒力碟簧支吊架分类、型式及图例
|
分类 |
系列 |
型号 |
吊架固定方式和管道、设备支吊型式 |
图例 |
|
垂直式 |
HZD |
HZDA |
碟簧组件顶部用单吊杆与生根梁连接,悬吊下方的管道或设备 |
图4-3-1 |
|
HZDB |
碟簧组件顶部用单拉板与生根梁连接,悬吊下方的管道或设备 |
|||
|
HZDC |
碟簧组件顶部用双拉板与生根梁连接,悬吊下方的管道或设备 |
|||
|
HZDD |
固定框架底板与生根梁连接,悬吊下方的管道或设备 |
|||
|
HZDE |
碟簧组件底板与生根梁连接,悬吊下方的管道或设备 |
|||
|
HZDG |
固定框架顶板用双吊杆与支撑构件连接,管道搁置在两支吊架间的横担上 |
|||
|
平式 |
PHD |
PHDA |
碟簧组件顶部用双螺栓与生根梁连接,悬吊下方的管道或设备 |
图4-3-2 |
|
PHDB |
碟簧组件顶部用单螺栓与生根梁连接,悬吊下方的管道或设备 |
|||
|
PHDE |
碟簧组件顶部用双孔耳板与生根梁连接,悬吊下方的管道或设备 |
|||
|
立式 |
LHD |
LHDA |
碟簧组件顶部用双螺栓与生根梁连接,悬吊下方的管道或设备 |
图4-3-3 |
|
LHDB |
碟簧组件顶部用单螺栓与生根梁连接,悬吊下方的管道或设备 |
|||
|
LHDE |
碟簧组件顶部用双孔耳板与生根梁连接,悬吊下方的管道或设备 |
|||
|
平座式 |
|
PHDZ |
平座式碟簧组件底板与生根梁连接,悬吊下方的管道或设备 |
图4-3-4 |
|
立座式 |
LHDZ |
LHDZa |
立座式碟簧组件底板与生根梁连接,悬吊下方的管道或设备 |
图4-3-5 |
|
LHDZb |
立座式碟簧组件底板与生根梁连接,支撑上方的管道或设备 |
4.2 型号表示方法

5 结构和工作原理
5.1 垂直式恒力碟簧支吊架结构和工作原理
垂直式恒力碟簧支吊架结构和工作原理图见图4-3-6。整个支吊架外形呈立方体形状,内部由组合碟形弹簧部分和机械运动部分两部分组成。
碟簧支吊架按固定方式与生根梁或者支撑构件连接之后,载荷力矩和碟簧的弹簧力矩达到平衡。位移时,通过杠杆臂拉动连杆,连杆又拉动碟形弹簧组一端的动压板,使碟形弹簧组受到压缩,从而实现载荷力矩和碟簧的弹簧力矩重新平衡。
5.2 平式、立式和座式恒力碟簧支吊架结构和工作原理
平式、立式和座式恒力碟簧支吊架结构和工作原理图见图4-3-7。
碟簧支吊架按固定方式与生根梁或者支撑构件连接之后,当回转框架上倾时,载荷力矩和碟簧的弹簧力矩达到平衡;当回转框架下倾时,通过位移的变化,拉动拉杆拉动碟形弹簧组一端的动压板,使碟形弹簧组受到压缩,从而实现载荷力矩和碟簧的弹簧力矩重新平衡。
6 选型
6.1 根据安装要求,按表4-3-2和图4-3-1~图4-3-5选用合适的吊架型式。
6.2 根据设计工作位移量,乘以1.2倍的余量,得到吊架标准位移值。
6.3 根据设计工作载荷在表4-3-1载荷位移系列表中选择相近似的标准载荷值。
6.4 根据选定的标准位移值、标准载荷值和位移方向在表4-3-1中确定支吊架编号。
7 安装和调整
恒力碟簧支吊架的安装和调整详见JB/T 10357-2002《恒力碟簧支吊架》标准附录B.2“恒力碟簧支吊架的安装、调整”,同时可参见DL/T 616-2006《火力发电厂汽水管道与支吊架维修调整导则》和DL/T 1113-2009《火力发电厂管道支吊架验收规程》。
表4-3-1 HZD、PHD、LHD系列恒力碟簧支吊架载荷位移系列表 N
|
位移 (mm) 编 号 |
50 |
56 |
63 |
71 |
80 |
90 |
100 |
112 |
125 |
140 |
160 |
180 |
200 |
224 |
250 |
280 |
315 |
400 |
430 |
450 |
500 |
|
l |
500 |
|
|
|
|
|
|
|
|
|
|
|
|
|
|
|
|
|
|
|
|
|
2 |
560 |
500 |
|
|
|
|
|
|
|
|
|
|
|
|
|
|
|
|
|
|
|
|
3 |
630 |
560 |
500 |
|
|
|
|
|
|
|
|
|
|
|
|
|
|
|
|
|
|
|
4 |
710 |
630 |
560 |
500 |
|
|
|
|
|
|
|
|
|
|
|
|
|
|
|
|
|
|
5 |
800 |
710 |
630 |
560 |
500 |
|
|
|
|
|
|
|
|
|
|
|
|
|
|
|
|
|
6 |
900 |
800 |
710 |
630 |
560 |
500 |
|
|
|
|
|
|
|
|
|
|
|
|
|
|
|
|
7 |
1000 |
900 |
800 |
710 |
630 |
560 |
500 |
|
|
|
|
|
|
|
|
|
|
|
|
|
|
|
8 |
1120 |
1000 |
900 |
800 |
710 |
630 |
560 |
500 |
|
|
|
|
|
|
|
|
|
|
|
|
|
|
9 |
1250 |
1120 |
1000 |
900 |
800 |
710 |
630 |
560 |
500. |
|
|
|
|
|
|
|
|
|
|
|
|
|
10 |
1400 |
1250 |
1120 |
1000 |
900 |
800 |
710 |
630 |
560 |
500 |
|
|
|
|
|
|
|
|
|
|
|
|
11 |
1600 |
1400 |
1250 |
1120 |
1000 |
900 |
800 |
710 |
630 |
560 |
500 |
|
|
|
|
|
|
|
|
|
|
|
12 |
1800 |
1600 |
1400 |
1250 |
1120 |
1000 |
900 |
800 |
710 |
630 |
560 |
500 |
|
|
|
|
|
|
|
|
|
|
13 |
2000 |
1800 |
1600 |
1400 |
1250 |
1120 |
1000 |
900 |
800 |
710 |
630 |
560 |
500 |
|
|
|
|
|
|
|
|
|
14 |
2240 |
2000 |
1800 |
1600 |
1400 |
1250 |
1120 |
1000 |
900 |
800 |
710 |
630 |
560 |
500 |
|
|
|
|
|
|
|
|
15 |
2500 |
2240 |
2000 |
1800 |
1600 |
1400 |
1250 |
1120 |
1000 |
900 |
800 |
710 |
630 |
560 |
500 |
|
|
|
|
|
|
|
16 |
2800 |
2500 |
2240 |
2000 |
1800 |
1600 |
1400 |
1250 |
1120 |
1000 |
900 |
800 |
710 |
630 |
560 |
500 |
|
|
|
|
|
|
17 |
3150 |
2800 |
2500 |
2240 |
2000 |
1800 |
1600 |
1400 |
1250 |
1120 |
1000 |
900 |
800 |
710 |
630 |
560 |
500 |
|
|
|
|
|
18 |
3550 |
3150 |
2800 |
2500 |
2240 |
2000 |
1800 |
1600 |
1400 |
1250 |
1120 |
1000 |
900 |
800 |
710 |
630 |
560 |
500 |
|
|
|
|
19 |
4000 |
3550 |
3150 |
2800 |
2500 |
2240 |
2000 |
1800 |
1600 |
1400 |
1250 |
1120 |
1000 |
900 |
800 |
710 |
630 |
560 |
500 |
|
|
|
20 |
4500 |
4000 |
3550 |
3150 |
2800 |
2500 |
2240 |
2000 |
1800 |
1600 |
1400 |
1250 |
1120 |
1000 |
900 |
800 |
710 |
630 |
560 |
|
|
|
2l |
5000 |
4500 |
4000 |
3550 |
3150 |
2800 |
2500 |
2240 |
2000 |
1800 |
1600 |
1400 |
1250 |
1120 |
1000 |
900 |
800 |
710 |
630 |
|
|
|
22 |
5600 |
5000 |
4500 |
4000 |
3550 |
3150 |
2800 |
2500 |
2240 |
2000 |
1800 |
1600 |
1400 |
1250 |
1120 |
1000 |
900 |
800 |
710 |
|
|
|
23 |
6300 |
5600 |
5000 |
4500 |
4000 |
3550 |
3150 |
2800 |
2500 |
2240 |
2000 |
1800 |
1600 |
1400 |
1250 |
1120 |
1000 |
900 |
800 |
|
|
|
24 |
7100 |
6300 |
5600 |
5000 |
4500 |
4000 |
3550 |
3150 |
2800 |
2500 |
2240 |
2000 |
1800 |
1600 |
1400 |
1250 |
1120 |
1000 |
900 |
|
|
|
25 |
8000 |
7100 |
6300 |
5600 |
5000 |
4500 |
4000 |
3550 |
3150 |
2800 |
2500 |
2240 |
2000 |
1800 |
1600 |
1400 |
1250 |
1120 |
1000 |
|
|
|
26 |
9000 |
8000 |
7100 |
6300 |
5600 |
5000 |
4500 |
4000 |
3550 |
3150 |
2800 |
2500 |
2240 |
2000 |
1800 |
1600 |
1400 |
1250 |
1120 |
|
|
|
27 |
|
|
10000 |
7100 |
6300 |
5600 |
5000 |
4500 |
4000 |
3550 |
4000 |
3550 |
3150 |
2800 |
2500 |
2240 |
2000 |
1800 |
1600 |
|
|
|
28 |
|
|
11200 |
10000 |
7100 |
6300 |
5600 |
5000 |
4500 |
4000 |
4500 |
4000 |
3550 |
3150 |
2800 |
2500 |
2240 |
2000 |
1800 |
|
|
|
29 |
|
|
12500 |
11200 |
10000 |
7100 |
6300 |
5600 |
5000 |
4500 |
5000 |
4500 |
4000 |
3500 |
3150 |
2800 |
2500 |
2240 |
2000 |
|
|
|
30 |
|
|
14000 |
12500 |
11200 |
10000 |
7100 |
6300 |
5600 |
5000 |
5600 |
5000 |
4500 |
4000 |
3500 |
3150 |
2800 |
2500 |
2240 |
|
|
|
31 |
|
|
16000 |
14000 |
12500 |
11200 |
10000 |
7100 |
6300 |
5600 |
6300 |
5600 |
5000 |
4500 |
4000 |
3500 |
3150 |
2800 |
2500 |
|
|
|
32 |
|
|
18000 |
16000 |
14000 |
12500 |
11200 |
10000 |
7100 |
6300 |
7100 |
6300 |
5600 |
5000 |
4500 |
4000 |
3500 |
3150 |
2800 |
|
|
|
33 |
|
|
20000 |
18000 |
16000 |
14000 |
12500 |
11200 |
10000 |
7100 |
8000 |
7100 |
6300 |
5600 |
5000 |
4500 |
4000 |
3500 |
3150 |
|
|
|
34 |
|
|
22400 |
20000 |
18000 |
16000 |
14000 |
12500 |
11200 |
10000 |
9000 |
8000 |
7100 |
6300 |
5600 |
5000 |
4500 |
4000 |
3500 |
|
|
续表4-3-1 N
|
位移 (mm)
编号 |
50 |
56 |
63 |
71 |
80 |
90 |
100 |
112 |
125 |
140 |
160 |
180 |
200 |
224 |
250 |
280 |
315 |
400 |
430 |
450 |
500 |
|
35 |
|
|
25000 |
22400 |
20000 |
18000 |
1600 |
14000 |
12500 |
11200 |
10000 |
9000 |
8000 |
7100 |
6300 |
5600 |
5000 |
4500 |
4000 |
|
|
|
36 |
|
|
28000 |
25000 |
22400 |
20000 |
18000 |
16000 |
14000 |
12500 |
11200 |
10000 |
9000 |
8000 |
7100 |
6300 |
5600 |
5000 |
4500 |
|
|
|
37 |
|
|
31500 |
28000 |
25000 |
22400 |
20000 |
18000 |
16000 |
14000 |
12500 |
11200 |
10000 |
9000 |
8000 |
7100 |
6300 |
5600 |
5000 |
|
|
|
38 |
|
|
35500 |
31500 |
28000 |
25000 |
22400 |
20000 |
18000 |
16000 |
14000 |
12500 |
11200 |
10000 |
9000 |
8000 |
7100 |
6300 |
5600 |
|
|
|
39 |
|
|
40000 |
35500 |
31500 |
28000 |
25000 |
22400 |
20000 |
18000 |
16000 |
14000 |
12500 |
11200 |
10000 |
9000 |
8000 |
7100 |
6300 |
|
|
|
40 |
|
|
45000 |
40000 |
35500 |
31500 |
28000 |
25000 |
22400 |
20000 |
18000 |
16000 |
14000 |
12500 |
11200 |
10000 |
9000 |
8000 |
7100 |
|
|
|
41 |
|
|
50000 |
45000 |
40000 |
35500 |
31500 |
28000 |
25000 |
25000 |
20000 |
18000 |
16000 |
14000 |
12500 |
11200 |
10000 |
9000 |
8000 |
|
|
|
42 |
|
|
|
56000 |
50000 |
45000 |
40000 |
35500 |
31500 |
28000 |
25000 |
22400 |
20000 |
18000 |
16000 |
14000 |
12500 |
11200 |
10000 |
|
|
|
43 |
|
|
|
63000 |
56000 |
50000 |
45000 |
40000 |
35500 |
31500 |
28000 |
25000 |
22400 |
20000 |
18000 |
16000 |
14000 |
12500 |
11200 |
|
|
|
44 |
|
|
|
71000 |
63000 |
56000 |
50000 |
45000 |
40000 |
35500 |
31500 |
28000 |
25000 |
22400 |
20000 |
18000 |
16000 |
14000 |
12500 |
|
|
|
45 |
|
|
|
80000 |
71000 |
63000 |
56000 |
50000 |
45000 |
40000 |
35500 |
31500 |
28000 |
25000 |
22400 |
20000 |
18000 |
16000 |
14000 |
|
|
|
46 |
|
|
|
90000 |
80000 |
71000 |
63000 |
56000 |
50000 |
45000 |
40000 |
35500 |
31500 |
28000 |
25000 |
22400 |
20000 |
18000 |
16000 |
|
|
|
47 |
|
|
|
100000 |
90000 |
80000 |
71000 |
63000 |
56000 |
50000 |
45000 |
40000 |
35500 |
31500 |
28000 |
25000 |
22400 |
20000 |
18000 |
|
|
|
48 |
|
|
|
112000 |
100000 |
90000 |
80000 |
71000 |
63000 |
56000 |
50000 |
45000 |
40000 |
35500 |
31500 |
28000 |
25000 |
22400 |
20000 |
|
|
|
49 |
|
|
|
|
125000 |
112000 |
100000 |
90000 |
80000 |
63000 |
63000 |
56000 |
50000 |
45000 |
40000 |
35500 |
31500 |
28000 |
25000 |
22400 |
20000 |
|
50 |
|
|
|
|
140000 |
125000 |
112000 |
100000 |
90000 |
80000 |
71000 |
63000 |
56000 |
50000 |
45000 |
40000 |
35500 |
31500 |
28000 |
25000 |
22400 |
|
51 |
|
|
|
|
160000 |
140000 |
125000 |
112000 |
100000 |
90000 |
80000 |
71000 |
63000 |
56000 |
50000 |
45000 |
40000 |
35500 |
31500 |
28000 |
25000 |
|
52 |
|
|
|
|
180000 |
160000 |
140000 |
125000 |
112000 |
100000 |
90000 |
80000 |
71000 |
63000 |
56000 |
50000 |
45000 |
40000 |
35500 |
31500 |
28000 |
|
53 |
|
|
|
|
200000 |
180000 |
160000 |
140000 |
125000 |
112000 |
100000 |
90000 |
80000 |
71000 |
63000 |
56000 |
50000 |
45000 |
40000 |
35500 |
31500 |
|
54 |
|
|
|
|
224000 |
200000 |
180000 |
160000 |
140000 |
125000 |
112000 |
100000 |
90000 |
80000 |
71000 |
63000 |
56000 |
50000 |
45000 |
40000 |
35500 |
|
55 |
|
|
|
|
250000 |
224000 |
200000 |
280000 |
160000 |
140000 |
125000 |
112000 |
100000 |
90000 |
80000 |
71000 |
63000 |
56000 |
50000 |
45000 |
40000 |
|
56 |
|
|
|
|
|
|
|
315000 |
250000 |
160000 |
200000 |
180000 |
160000 |
140000 |
125000 |
112000 |
100000 |
90000 |
80000 |
71000 |
63000 |
|
57 |
|
|
|
|
|
|
|
355000 |
280000 |
250000 |
224000 |
200000 |
180000 |
160000 |
140000 |
125000 |
112000 |
100000 |
90000 |
80000 |
71000 |
|
58 |
|
|
|
|
|
|
|
400000 |
315000 |
280000 |
250000 |
224000 |
200000 |
180000 |
160000 |
140000 |
125000 |
112000 |
100000 |
90000 |
80000 |
|
59 |
|
|
|
|
|
|
|
|
355000 |
315000 |
280000 |
250000 |
224000 |
200000 |
180000 |
160000 |
140000 |
125000 |
112000 |
100000 |
90000 |
|
60 |
|
|
|
|
|
|
|
|
400000 |
355000 |
315000 |
280000 |
250000 |
224000 |
200000 |
180000 |
160000 |
140000 |
125000 |
112000 |
100000 |
|
61 |
|
|
|
|
|
|
|
|
|
400000 |
355000 |
315000 |
280000 |
250000 |
224000 |
200000 |
180000 |
160000 |
140000 |
125000 |
112000 |
|
62 |
|
|
|
|
|
|
|
|
|
|
400000 |
355000 |
315000 |
280000 |
250000 |
224000 |
200000 |
180000 |
160000 |
140000 |
125000 |
|
63 |
|
|
|
|
|
|
|
|
|
|
|
400000 |
355000 |
315000 |
280000 |
250000 |
224000 |
200000 |
180000 |
160000 |
140000 |
|
64 |
|
|
|
|
|
|
|
|
|
|
|
|
400000 |
355000 |
315000 |
280000 |
250000 |
224000 |
200000 |
180000 |
160000 |
|
65 |
|
|
|
|
|
|
|
|
|
|
|
|
|
400000 |
355000 |
315000 |
280000 |
250000 |
224000 |
200000 |
180000 |
|
66 |
|
|
|
|
|
|
|
|
|
|
|
|
|
|
400000 |
355000 |
315000 |
280000 |
250000 |
224000 |
200000 |
|
67 |
|
|
|
|
|
|
|
|
|
|
|
|
|
|
|
400000 |
355000 |
315000 |
280000 |
250000 |
224000 |



图4-3-4 PHDZ型平座式恒力碟簧支吊架 图4-3-5 LHDZ型立座式恒力碟簧支吊架外形图



(1-1)回转框架上倾 (1-2)回转框架下倾
(1) PHD型平式恒力碟簧支吊架

(2-1)回转框架上倾 (2-2)回转框架下倾
(2) LHD型立式恒力碟簧支吊架

(3-1)回转框架上倾 (3-2)回转框架下倾
(3) PHDZ、LHDZ型座式恒力碟簧支吊架
图4-3-7 PHD、LHD、PHDZ、LHDZ型恒力碟簧支吊架结构原理图