第2卷 功能性部件
第4篇 承受管道载荷的管道支吊架
第1章 PH、LH、ZH系列恒力弹簧支吊架(JB/T 8130.1-1999)
1 适用范围
PH、LH、ZH系列恒力弹簧支吊架(JB/T 8130.1-1999)适用的位移范围为50~400㎜,载荷范围为123.5~315991N。
2 分类和型号表示方法
2.1 分类和型式(表4-1-1、图4-1-1)
表4-1-1 恒力弹簧支吊架分类和型式及图例
|
分类 |
型式 |
吊架固定方式及管道或设备支吊型式 |
图例 |
|
平式 |
PHA |
固定框架顶板用双拉杆与支承构件连接,悬吊下面的管道和设备 |
图4-1-2 |
|
PHB |
固定框架顶板用单拉杆与支承构件连接,悬吊下面的管道和设备 |
||
|
PHC |
固定框架顶板用单孔耳板与支承构件连接,悬吊下面的管道和设备 |
||
|
PHD |
固定框架顶板安装在支承构件上,悬吊下面的管道和设备 |
||
|
PHE |
固定框架顶板用双孔耳板与支承构件连接,悬吊下面的管道和设备 |
||
|
立式 |
LHA |
固定框架顶板用双拉杆与支承构件连接,悬吊下面的管道和设备 |
图4-1-3 |
|
LHB |
固定框架顶板用单拉杆与支承构件连接,悬吊下面的管道和设备 |
||
|
LHC |
固定框架顶板用单孔耳板与支承构件连接,悬吊下面的管道和设备 |
||
|
LHE |
固定框架顶板用双孔耳板与支承构件连接,悬吊下面的管道和设备 |
||
|
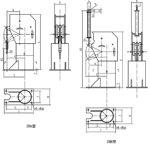
座式 |
ZHA |
弹簧罩筒底板安装在支承构件上,悬吊下面的管道和设备 |
图4-1-4 |
|
ZHB |
弹簧罩筒底板安装在支承构件上,支撑上方的管道和设备 |
2.2 型号表示方法
支吊架型式代号,见表4-1-1

![]()

图4-1-2 PH型平式恒力弹簧支吊架外形图

图4-1-3 LH型立式恒力弹簧支吊架外形图

图4-1-4 ZH型座式恒力弹簧支吊架外形图
3 结构和工作原理
3.1 结构
恒力弹簧支吊架的结构见图4-1-5。
3.1.1 回转框架和固定框架
回转框架(8)的回转主轴(11)安装在固定框架(1)的主轴孔内。载荷通过吊杆、松紧螺母(18)、载荷螺栓(17)拉动回转框架(8),形成载荷力矩。恒力弹簧支吊架在位移过程中载荷基本是恒定的。


图4-1-6 恒力弹簧支吊架结构原理图
![31 [Converted].tif](p24-p37.files/image009.jpg)
3.1.2 回转指示销与位移显示
回转框架(8)上的回转指示销(4)穿过固定框架(1)上的弧形孔内,下方显示位移指示牌(16),以显示位移的范围。当位移方向向下时,回转指示销(4)由初始位置按逆时针方向位移到另一端位置,回转框架(8)也按逆时针方向回转,使载荷向下位移;当位移方向向上时,回转指示销(4)由初始位置按顺时针方向位移到另一端位置,回转框架(8)也按顺时针方向回转,使载荷向上位移。
3.1.3 拉板、拉杆螺栓和压力弹簧
与回转框架(8)相连接的拉板(7),并通过连接轴(6)与拉杆螺栓(7)相连接。壳体(13)内有压力弹簧(15),后端有压板(14),通过螺母,把压力弹簧工作负荷调整到规定的数值。
3.1.4 固定销轴
通过出厂试验,当载荷力矩与弹簧力矩达到平衡时,用固定销轴(10)把固定框架(1)与回转框架(8)锁定后出厂。在安装调整时,当实际载荷力矩与弹簧力矩平衡后,即可拔出固定销轴(10)。
3.1.5 载荷调整螺栓和调整显示标牌
当实际载荷力矩与弹簧力矩差距较大,固定销轴(10)不能拔出,而调整松紧螺母(18)仍然无效时,可调整载荷调整螺栓(3),调整拉板连接轴(9)上的指示刻线与调整指示标牌(2)的显示位置,使实际载荷力矩与弹簧力矩重新实现平衡,而拔出固定销轴(10)。
3.2 工作原理(图4-1-6)
3.2.1 平式(PH)恒力弹簧支吊架的工作原理(图4-1-6(1))
当回转框架上倾300时(图中1-1),载荷Q和力臂K形成的载荷力矩,与弹簧工作压力P1和力臂R0形成的弹簧力矩达到平衡状态。当回转框架下倾300时(图中1-2),载荷Q和力臂K形成的载荷力矩没有变化。而通过位移的变化,弹簧压力P1经过弹簧变形量F的压缩,弹簧工作压力由P1变成P2,而力臂R0变成cos600·R0,同样使载荷力矩与弹簧力矩重新达到平衡。位移向下时,回转框架由上倾300向下拉到下倾300;位移向上时,回转框架由下倾300向上拉到上倾300。
3.2.2 立式(LH)恒力弹簧支吊架的工作原理(图4-1-6(2))
当回转框架上倾300时(图中2-1),载荷Q和力臂K形成的载荷力矩,与弹簧工作压力P1和力臂R0形成的弹簧力矩达到平衡状态。当回转框架下倾300时(图中2-2),载荷Q和力臂K形成的载荷力矩没有变化。而通过位移的变化,弹簧压力P1经过弹簧变形量F的压缩,弹簧工作压力由P1变成P2,而力臂R0变成cos600·R0,同样使载荷力矩与弹簧力矩重新达到平衡。位移向下时,回转框架由上倾300向下拉到下倾300;位移向上时,回转框架由下倾300向上拉到上倾300。
3.2.3 座式(ZH)恒力弹簧支吊架的工作原理(图4-1-6(3))
当回转框架上倾300时(图中3-1),载荷Q和力臂K形成的载荷力矩,与弹簧工作压力P1和力臂R0形成的弹簧力矩达到平衡状态。当回转框架下倾300时(图中3-2),载荷Q和力臂K形成的载荷力矩没有变化。而通过位移的变化,弹簧压力P1经过弹簧变形量F的压缩,弹簧工作压力由P1变成P2,而力臂R0变成cos600·R0,同样使载荷力矩与弹簧力矩重新达到平衡。位移向下时,回转框架由上倾300向下拉到下倾300;位移向上时,回转框架由下倾300向上拉到上倾300。
4 载荷位移系列表
载荷位移系列表见表4-1-2。
5 选用
5.1 典型安装图
恒力弹簧支吊架的典型安装图见图4-1-7。
5.2 选用原则
恒力弹簧支吊架的选用原则见表4-1-3。
表4-1-3 恒力弹簧支吊架的选型原则
|
选型类别 |
分 类 |
适 用 范 围 |
示 例 |
|
类别的选择 |
PH型平式恒力弹簧支吊架 |
水平空间较大的地方 |
|
|
LH型立式恒力弹簧支吊架 |
水平空间不宽裕,需要支吊架垂直布置以增加设备整体美观的地方 |
|
|
|
ZH型座式恒力弹簧支吊架 |
需要把支吊架安置在支承构件上面,上支或者下 吊管道或设备的地方 |
|
|
|
型式的选择 |
双吊点吊架 |
安装方便,固定可靠 |
PHA、PHE、LHA、LHE |
|
单吊点吊架 |
布置方便,可自由旋转避开障碍物 |
PHB、PHC、LHB、LHC |
|
|
座式支吊架 |
按用户需要,可直接安置在支承构件上面,但PHD需要较大的水平空间 |
PHD、ZHA、ZHB |
|
|
选用位移量的确定 |
|
应计算出被支吊的管道或设备从冷态到热态的最大垂直位移量,选用位移量=1.2×计算位移量,而且不小于20mm |
计算位移量=215,215×1.2=258,选用位移量=260 |
|
载荷值 的确定 |
|
选型时不需考虑支吊架的自重 计算载荷与实际载荷有偏差,可通过调整螺栓调节载荷,调节量不小于标准载荷的±10%,最大不超过±15% |
|
|
支吊架规格的选择 |
|
根据支吊架已经确定的载荷值和位移量,查载荷位移系列表,按计算位移值下的支吊架载荷最接近的标准载荷值确定相应的支吊架编号 当载荷位移系列表中位移量虽然能满足要求,但载荷值较大,以至于超出表中数值时,可选用两个相同规格的支吊架并联 当载荷位移系列表中载荷值虽然能满足要求,但位移量较大,以至于超出表中数值时,可选用两个相同位移量的支吊架串联 |
载荷=32610N,查载荷位移表,与此相近的载荷选32536N,选吊架号NO.50
|
注:载荷螺栓相对于垂直方向允许有40左右的摆动,以使吊架适应管道的水平位移。当管道从安装状态到工作状态水平位移较大时,恒力弹簧支吊架与管道相接的吊杆冷态安装状态位置应充分考虑这个水平位移量和位移方向后确定,以使工作状态下吊杆位置呈最合适的垂直状态。

6 性能试验
恒力弹簧支吊架的性能试验要求见表4-1-4。
表4-1-4 恒力弹簧支吊架性能试验要求
|
性能试验项目 |
性 能 试 验 计 算 公 式 |
性 能 指 标 值 |
|
载荷偏差度 |
式中:Wb——标准载荷,N; Ws——拔销时实测载荷,N |
|
|
恒 定 度 |
式中:Wmax——回转机构回转全过程中的最大载荷值,N; Wmin——回转机构回转全过程中的最小载荷值,N |
|
|
超 载 试 验 |
将固定销轴置于出厂初始位置,对恒力弹簧支吊架缓慢加载,使其载荷值加载到2倍支吊架标准载荷值,观察超载试验结果 |
超载试验结果应无异常 |
7 安装调整
7.1 要求和原则(表4-1-5)
表4-1-5 恒力弹簧支吊架安装调整的具体要求和原则
|
序号 |
要 点 |
具 体 要 求 和 原 则 |
检 查 |
|
1 |
清点核查 |
根据管道或设备支吊架安装布置图及明细表,清点核查弹簧支吊架型号及其安装位置 |
清点核查无误 |
|
2 |
吊装和固定 |
用起重设备和工具吊起弹簧支吊架,按要求将其固定或吊装于钢梁或构架上 |
固定或吊装可靠 |
|
3 |
连接管道或设备 |
将吊杆螺栓的上端与弹簧支吊架的本体的松紧螺母连接,下端与被吊的管道或设备连接,旋转松紧螺母到合适的位置,至固定销轴能自由拔出为止,同时检查和调整被吊的管道或设备的位置的水平状态 |
1.检查固定销轴应能自由拔出 2.检查被吊的管道或设备的位置的水平状态 |
|
4 |
水压试验 |
1.支吊架载荷稳定之后,应用固定销轴锁定,准备水压试验,在水压试验和清洗管道过程中,不要拔下固定销轴,让恒 力弹簧支吊架锁定为刚性支吊架,吸收过载,保护弹簧等构件不致受损 2.进行水压试验 3.水压试验和清洗管道后,可拔下固定销轴,检查和调整 位移指示器在冷态位置,即可投入运行 |
按水压试验工艺要求进行 |
7.2 力矩不平衡的处置方法
恒力弹簧支吊架当载荷力矩和弹簧力矩达到平衡时,固定销轴应能够自由拔出,恒力弹簧支吊架即可进入正常的工作状态。如果固定销轴不能正常拔出,说明载荷力矩和弹簧力矩没有达到平衡,需要进行调整。固定销轴不能够自由拔出的调整方案见表4-1-6。
表4-1-6 恒力弹簧支吊架固定销轴不能拔出时的调整方案
|
类 别 |
现 象 |
原 因 |
调 整 方 法 |
|
载荷力矩与弹簧力矩偏差不大 |
固定销轴在固定框架孔中偏向载荷一侧 |
载荷力矩偏大 |
旋松松紧螺母,拔下固定销轴 |
|
固定销轴在固定框架孔中偏向弹簧罩筒一侧 |
弹簧力矩偏大 |
旋紧松紧螺母,拔下固定销轴 |
|
|
载荷力矩与弹簧力矩偏差较大 |
旋松松紧螺母无效 |
载荷力矩较大 |
调整吊架本体的载荷调整螺栓, 使调整指示刻度槽向上移 ,拔下 固定销轴 |
|
旋紧松紧螺母无效 |
弹簧力矩较大 |
调整吊架本体的载荷调整螺栓, 使调整指示刻度槽向下移 ,拔下 固定销轴 |
|
|
载荷力矩与弹簧力矩偏差很大 |
调整松紧螺母和载荷调整螺栓均无效 |
吊架选型不当 |
改变载荷分配或改换吊架 |
|
载荷力矩与弹簧力矩不平衡 |
在不影响实际位移的前提下,可 适当调整吊架弹簧后压盖的压紧螺母,改变弹簧的预压值,使弹簧力矩与载荷力矩平衡后拔下固定销轴 |
7.3 两台或两台以上的调整方法
如果同一管道或设备用两台或两台以上支吊架,在进行载荷调整时,一般应同时进行,使各台支吊架的承载分配均匀。如不能同时进行而需要逐台进行时,应反复调整,直至各台支吊架的承载分配均匀为止。
7.4 位移指示的注意事项
在运行中应经常观察支吊架的位移量,检查支吊架是否妨碍管道或设备的自由位移。位移指示器的刻槽应在0~10的刻度范围内移动,不应碰到弧形槽。否则应按上述方法再次调整。
7.5 安装、调整和验收的技术规范
恒力弹簧支吊架的安装、调整和验收的技术规范有:
7.5.1 DL/T 616-2006《火力发电厂汽水管道与支吊架维修调整导则》。
7.5.2 DL/T 1113-2009《火力发电厂管道支吊架验收规程》。